Aukce skončila.
Cena dosažená vydražením činí
30 500 Kč
Nejvyšší nabídku učinil účastník aukce
ID886161
Aukce pronájmu bytu z majetku Městské části Praha 3. Uzávěrka přihlášek do aukce včetně složení kauce 8. 12. 2025 do 18:00 hod (více v aukční kartě).
Účastnit aukce se mohou pouze fyzické osoby –občané ČR, Ukrajiny nebo členského státu Evropské unie nebo členského státu ESVO, tj. Lichtenštejnska, Švýcarska, Norska a Islandu.
Poloha:
Byt se nachází v nově zrekonstruovaném panelovém domě v klidné části Žižkova, nad gymnáziem na Komenského náměstí, v oblasti zrekonstruovaných panelových domů a nové výstavby. Občanská vybavenost se nachází v okolí, v blízkosti jsou mateřské, základní, střední i vysoké školy. Dobrá dopravní dostupnost do centra, stanice tramvaje Olšanské náměstí necelých 700 m, zastávka busu Rokycanova směr Florenc, Flora a Háje 200 m.
Popis bytu:
Byt se nachází v nově zrekonstruovaném panelovém domě v klidné části Žižkova, nad gymnáziem na Komenského náměstí, v oblasti zrekonstruovaných panelových domů a nové výstavby. Občanská vybavenost se nachází v okol, v blízkosti jsou mateřské, základní, střední i vysoké školy. Dobrá dopravní dostupnost do centra, stanice tramvaje Olšanské náměstí necelých 700 m, zastávka busu Rokycanova směr Florenc, Flora a Háje 200 m.
Popis bytu:
Zrekonstruovaný byt se nachází ve zvýšeném přízemí domu s výtahem. Vstup do domu je z ulice Roháčova.
Dispozice: z chodby domu se vchází do předsíně, z ní do haly, ze které jsou vstupy do dalších místností bytu.
Kuchyňský kout je zařízen linkou s odtahovou digestoří, sklokeramickou varnou deskou, el. troubou a myčkou.
Koupelna je zařízena sprchou, umyvadlem, závěsným WC, kombinovaným. topným žebříkem a místem pro připojení pračky.
Podlahy: vinylové, v koupelně a WC dlažba. Nová hliníková okna. Vytápění a teplá voda jsou zajištěny dálkově.
Výměry[1]:
Pokoj | 12,90 m2 |
Pokoj | 12,24 m2 |
Pokoj | 10,74 m2 |
Kuchyňský kout | 6,90 m2 |
Koupelna s WC | 10,78 m2 |
Hala | 43,46 m2 |
Předsíň | 3,13 m2 |
Celkem: | 99,88 m2 |
Třída energetické náročnosti budovy: B
Zálohy na služby pro 1 osobu/měsíc: 2 043 Kč, v tom topení 1 381 Kč/byt, elektřina se převádí na nájemce.
Vyvolávací cena: 15 000 Kč/měsíc
Prohlídky 6 bytů – 1. část:
· středa 26. 11. 2025, 16:30 - 18:00
· úterý 2. 12. 2025, 16:30 - 18:00
Byt si můžete prohlédnout kdykoliv ve vymezeném čase, není potřeba se objednávat.
Termíny prohlídek mohou být i v průběhu výběrového řízení upraveny.
Adresa: Blahoslavova 293/10, 130 00 Praha 3 - Žižkov
Zodpovědná osoba:
Ing. Zdeněk Břeh
E-mail: zdenek.breh@gavlas.cz
Mobil: 777 721 509
Tel.: 221 666 666
[1] Dle Evidenčního listu
Pronájem bytové jednotky č. 293/2 (v Evidenčním listu byt veden pod č. bytu/ev. číslo 2) umístěné v budově č.p. 293 v katastrálním území Žižkov, obec Praha.
Aukční karta: Aukční karta - Blahoslavova 293,2, IGN.pdf
1.NÁVOD _ Jak se zúčastnit aukce pronájmu bytu Praha 3 _ 12.VŘ.pdf
2.MANUAL _ How to participate in the auction Praha 3 _ 12.VŘ.pdf
3.NÁVOD _ Jak přihazovat v aukci.pdf
4.MANUAL _ How to bid at an auction with an auction wallet.pdf
Podminky_12._VR_P3_-_pronajmy_bytu_prilohy.pdf
Příloha č.1_seznam bytových jednotek.pdf
Příloha č. 2_vzor nájemní smlouvy.pdf
PENB Blahoslavova 10.pdf
Domovní řád.pdf
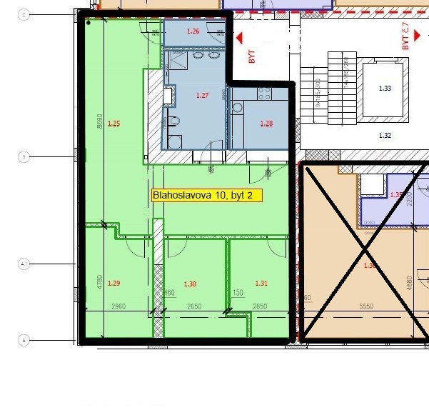
Plánek - Blahoslavova 10 byt č. 2.pdf
| Účastník aukce | Čas příhozu | Výše příhozu | Nabídka |
|---|---|---|---|
| 886161 | 12.12.2025 16:04:38.554 | 100,- | 30 500,- |
| 885227 | 12.12.2025 16:04:35.735 | 100,- | 30 400,- |
| 886161 | 12.12.2025 16:02:53.936 | 100,- | 30 300,- |
| 885227 | 12.12.2025 16:02:52.563 | 1 000,- | 30 200,- |
| 886161 | 12.12.2025 16:02:32.233 | 100,- | 29 200,- |
| 885227 | 12.12.2025 16:02:25.741 | 100,- | 29 100,- |
| 886161 | 12.12.2025 16:01:03.976 | 100,- | 29 000,- |
| 885227 | 12.12.2025 16:01:01.671 | 100,- | 28 900,- |
| 886161 | 12.12.2025 16:00:18.936 | 100,- | 28 800,- |
| 885227 | 12.12.2025 16:00:13.389 | 100,- | 28 700,- |
| 886161 | 12.12.2025 16:00:09.138 | 100,- | 28 600,- |
| 885501 | 12.12.2025 16:00:05.113 | 100,- | 28 500,- |
| 886161 | 12.12.2025 15:59:49.133 | 100,- | 28 400,- |
| 885501 | 12.12.2025 15:59:43.562 | 100,- | 28 300,- |
| 886161 | 12.12.2025 15:59:20.759 | 100,- | 28 200,- |
| 885227 | 12.12.2025 15:59:13.632 | 100,- | 28 100,- |
| 886161 | 12.12.2025 15:58:25.233 | 100,- | 28 000,- |
| 885227 | 12.12.2025 15:58:22.532 | 100,- | 27 900,- |
| 886161 | 12.12.2025 15:58:14.943 | 100,- | 27 800,- |
| 886161 | 12.12.2025 15:58:08.410 | 100,- | 27 700,- |
| 886161 | 12.12.2025 15:58:04.120 | 100,- | 27 600,- |
| 885227 | 12.12.2025 15:58:02.014 | 100,- | 27 500,- |
| 886161 | 12.12.2025 15:57:54.303 | 100,- | 27 400,- |
| 885227 | 12.12.2025 15:57:51.427 | 100,- | 27 300,- |
| 886161 | 12.12.2025 15:57:45.635 | 100,- | 27 200,- |
| 885227 | 12.12.2025 15:57:33.197 | 100,- | 27 100,- |
| 886161 | 12.12.2025 15:57:05.135 | 100,- | 27 000,- |
| 885501 | 12.12.2025 15:55:47.887 | 100,- | 26 900,- |
| 886161 | 12.12.2025 15:16:17.130 | 800,- | 26 800,- |
| 885227 | 12.12.2025 11:22:48.339 | 100,- | 26 000,- |
| 882551 | 12.12.2025 09:29:33.817 | 100,- | 25 900,- |
| 886161 | 11.12.2025 21:23:00.416 | 100,- | 25 800,- |
| 882551 | 11.12.2025 18:58:45.852 | 100,- | 25 700,- |
| 886161 | 11.12.2025 15:53:23.723 | 100,- | 25 600,- |
| 882551 | 11.12.2025 12:41:10.056 | 100,- | 25 500,- |
| 885501 | 11.12.2025 12:41:02.171 | 100,- | 25 400,- |
| 882551 | 11.12.2025 10:29:37.192 | 100,- | 25 300,- |
| 881096 | 11.12.2025 10:29:27.943 | 100,- | 25 200,- |
| 882551 | 11.12.2025 10:27:33.493 | 100,- | 25 100,- |
| 881096 | 11.12.2025 10:27:31.573 | 100,- | 25 000,- |
| 882551 | 11.12.2025 10:27:26.388 | 100,- | 24 900,- |
| 881096 | 11.12.2025 10:27:19.997 | 100,- | 24 800,- |
| 882551 | 11.12.2025 10:27:14.141 | 100,- | 24 700,- |
| 882551 | 11.12.2025 10:27:08.715 | 100,- | 24 600,- |
| 881096 | 11.12.2025 10:27:06.035 | 100,- | 24 500,- |
| 882551 | 11.12.2025 10:26:53.934 | 100,- | 24 400,- |
| 881096 | 11.12.2025 10:26:51.129 | 100,- | 24 300,- |
| 882551 | 11.12.2025 10:26:41.844 | 100,- | 24 200,- |
| 881096 | 11.12.2025 10:26:36.158 | 100,- | 24 100,- |
| 882551 | 11.12.2025 10:26:26.349 | 100,- | 24 000,- |
| 881096 | 11.12.2025 10:26:17.426 | 100,- | 23 900,- |
| 882551 | 11.12.2025 10:26:05.220 | 100,- | 23 800,- |
| 881096 | 11.12.2025 10:25:59.682 | 100,- | 23 700,- |
| 882551 | 11.12.2025 10:25:38.378 | 100,- | 23 600,- |
| 881096 | 11.12.2025 10:25:25.534 | 100,- | 23 500,- |
| 882551 | 11.12.2025 10:25:14.383 | 100,- | 23 400,- |
| 881096 | 11.12.2025 10:25:04.135 | 100,- | 23 300,- |
| 882551 | 11.12.2025 10:24:50.023 | 100,- | 23 200,- |
| 881096 | 11.12.2025 10:24:45.998 | 100,- | 23 100,- |
| 882551 | 11.12.2025 10:24:34.627 | 100,- | 23 000,- |
| 881096 | 11.12.2025 10:24:29.873 | 100,- | 22 900,- |
| 882551 | 11.12.2025 10:23:55.444 | 100,- | 22 800,- |
| 881096 | 11.12.2025 10:23:43.917 | 100,- | 22 700,- |
| 882551 | 11.12.2025 10:23:31.901 | 100,- | 22 600,- |
| 881096 | 11.12.2025 10:23:18.971 | 100,- | 22 500,- |
| 882551 | 11.12.2025 10:22:58.374 | 100,- | 22 400,- |
| 881096 | 11.12.2025 10:22:47.286 | 100,- | 22 300,- |
| 882551 | 11.12.2025 10:22:41.978 | 100,- | 22 200,- |
| 881096 | 11.12.2025 10:22:35.176 | 100,- | 22 100,- |
| 882551 | 11.12.2025 10:22:05.584 | 100,- | 22 000,- |
| 881096 | 11.12.2025 10:21:59.494 | 100,- | 21 900,- |
| 882551 | 11.12.2025 10:20:37.143 | 200,- | 21 800,- |
| 885501 | 11.12.2025 10:19:56.827 | 100,- | 21 600,- |
| 882551 | 11.12.2025 10:19:51.017 | 200,- | 21 500,- |
| 885501 | 11.12.2025 10:19:44.708 | 100,- | 21 300,- |
| 882551 | 11.12.2025 10:19:31.042 | 100,- | 21 200,- |
| 885501 | 11.12.2025 10:19:26.228 | 100,- | 21 100,- |
| 882551 | 11.12.2025 10:19:16.492 | 200,- | 21 000,- |
| 881096 | 11.12.2025 10:18:51.671 | 100,- | 20 800,- |
| 882551 | 11.12.2025 10:09:58.092 | 200,- | 20 700,- |
| 886161 | 11.12.2025 10:09:51.523 | 100,- | 20 500,- |
| 882551 | 11.12.2025 10:05:41.779 | 300,- | 20 400,- |
| 885501 | 11.12.2025 10:05:33.115 | 100,- | 20 100,- |
| 882551 | 11.12.2025 10:05:04.830 | 300,- | 20 000,- |
| 885501 | 11.12.2025 10:04:56.302 | 100,- | 19 700,- |
| 882551 | 11.12.2025 10:04:44.686 | 500,- | 19 600,- |
| 885501 | 11.12.2025 10:04:35.127 | 100,- | 19 100,- |
| 882551 | 11.12.2025 10:04:22.416 | 500,- | 19 000,- |
| 885501 | 11.12.2025 10:04:14.203 | 100,- | 18 500,- |
| 882551 | 11.12.2025 10:04:03.340 | 400,- | 18 400,- |
| 885501 | 11.12.2025 10:03:53.642 | 100,- | 18 000,- |
| 882551 | 11.12.2025 10:03:46.952 | 200,- | 17 900,- |
| 885501 | 11.12.2025 10:03:39.306 | 100,- | 17 700,- |
| 882551 | 11.12.2025 10:03:32.634 | 300,- | 17 600,- |
| 885501 | 11.12.2025 10:03:24.075 | 100,- | 17 300,- |
| 882551 | 11.12.2025 10:03:01.764 | 300,- | 17 200,- |
| 885501 | 11.12.2025 10:02:53.317 | 100,- | 16 900,- |
| 882551 | 11.12.2025 10:01:44.606 | 200,- | 16 800,- |
| 885501 | 11.12.2025 10:01:31.472 | 100,- | 16 600,- |
| 882551 | 11.12.2025 10:00:56.756 | 700,- | 16 500,- |
| 886161 | 11.12.2025 10:00:38.358 | 200,- | 15 800,- |
| 882551 | 11.12.2025 10:00:24.687 | 500,- | 15 600,- |
| 885501 | 11.12.2025 10:00:11.541 | 100,- | 15 100,- |