Aukce skončila.
Cena dosažená vydražením činí
17 600 Kč
Nejvyšší nabídku učinil účastník aukce
ID889612
Aukce pronájmu bytu z majetku Městské části Praha 3. Uzávěrka přihlášek do aukce včetně složení kauce 8. 12. 2025 do 18:00 hod (více v aukční kartě).
Účastnit aukce se mohou pouze fyzické osoby – občané ČR, Ukrajiny nebo členského státu Evropské unie nebo členského státu ESVO, tj. Lichtenštejnska, Švýcarska, Norska a Islandu.
Poloha:
Byt se nachází v klidné části Žižkova, v dolní části ulice Jeseniova, nad gymnáziem na Komenského náměstí, v oblasti zrekonstruovaných panelových domů a nové výstavby. Občanská vybavenost se nachází v okolí. Dobrá dopravní dostupnost do centra, stanice tramvaje Olšanské náměstí cca 600 m, zastávka busu Rokycanova cca 300 m.
Popis bytu:
Zrekonstruovaný byt se nachází ve 2. NP domu s výtahem.
Dispozice: z chodby domu se vchází do předsíně, ze které jsou vstupy do dalších místností bytu. K pokoji přiléhá po celé délce zasklená lodžie orientovaná na jih do ulice Jeseniova.
Kuchyňský kout je zařízen linkou s digestoří, sklokeramickou deskou a el. troubou.
Koupelna je zařízena sprchou, umyvadlem a elektrickým topným žebříkem. V koupelně není místo pro pračku.
Okna jsou plastová s vnitřními žaluziemi.
Podlahy: vinylové, v koupelně a WC dlažba. Vytápění a teplá voda jsou zajištěny dálkově.
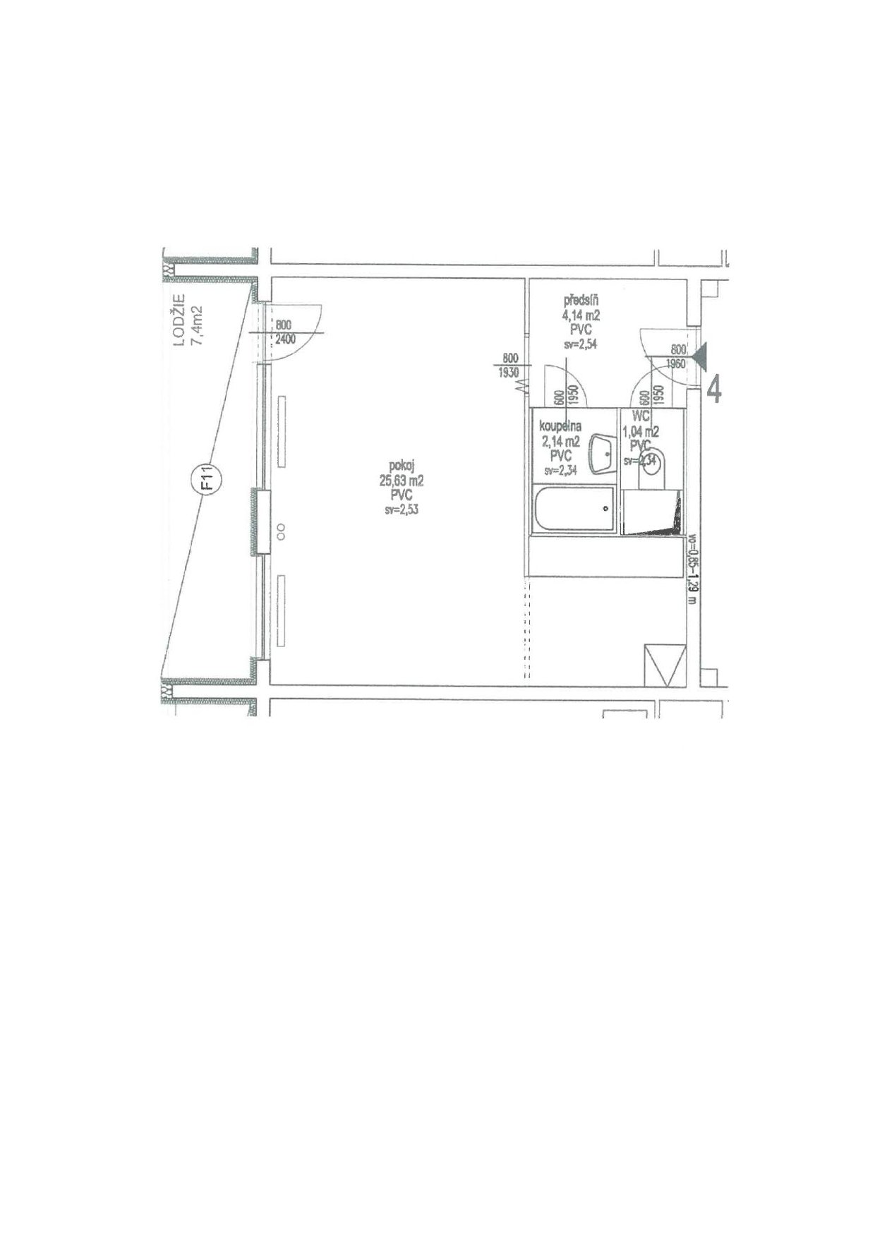
Výměry[1]:
Obytná místnost s kuch. koutem | 23,23 m2 |
Koupelna | 1,47 m2 |
WC | 0,98 m2 |
Předsíň | 3,25 m2 |
Lodžie | 6,34 m2 |
Sklep | 2,50m2 |
Celkem | 37,77 m2 |
Třída energetické náročnosti budovy: B
Zálohy na služby pro 1 osobu/měsíc: 1 930 Kč, v tom topení 1 200 Kč/byt, elektřina se převádí na nájemce.
Vyvolávací cena: 5 700 Kč/měsíc
Prohlídky 6 bytů – 1. část:
· středa 26. 11. 2025, 16:30 - 18:00
· úterý 2. 12. 2025, 16:30 - 18:00
Byt si můžete prohlédnout kdykoliv ve vymezeném čase, není potřeba se objednávat.
Termíny prohlídek mohou být i v průběhu výběrového řízení upraveny.
Adresa: Jeseniova 431/17, 130 00 Praha 3 - Žižkov
Zodpovědná osoba:
Ing. Zdeněk Břeh
E-mail: zdenek.breh@gavlas.cz
Mobil: 777 721 509
Tel.: 221 666 666
[1] Dle Evidenčního listu
Pronájem bytové jednotky č. 431/4 (v Evidenčním listu byt veden pod č. bytu/ev. číslo 4) umístěné v budově č.p. 431 v katastrálním území Žižkov, obec Praha.
Aukční karta: Aukční karta - Jeseniova 431,4, IGN.pdf
1.NÁVOD _ Jak se zúčastnit aukce pronájmu bytu Praha 3 _ 12.VŘ.pdf
2.MANUAL _ How to participate in the auction Praha 3 _ 12.VŘ.pdf
3. NÁVOD _ Jak přihazovat v aukci.pdf
4.MANUAL _ How to bid at an auction with an auction wallet.pdf
Podminky_12._VR_P3_-_pronajmy_bytu_prilohy.pdf
Příloha č.1_seznam bytových jednotek.pdf
Příloha č. 2_vzor nájemní smlouvy.pdf
Plánek - Jeseniova 17, byt č. 4.pdf
PENB_Jeseniova 511-15 a 431-17.pdf
| Účastník aukce | Čas příhozu | Výše příhozu | Nabídka |
|---|---|---|---|
| 889612 | 12.12.2025 15:41:29.772 | 100,- | 17 600,- |
| 879985 | 12.12.2025 15:40:50.733 | 100,- | 17 500,- |
| 889612 | 12.12.2025 15:40:28.172 | 100,- | 17 400,- |
| 879985 | 12.12.2025 15:39:12.367 | 100,- | 17 300,- |
| 889612 | 12.12.2025 15:38:14.125 | 100,- | 17 200,- |
| 879985 | 12.12.2025 15:37:54.881 | 100,- | 17 100,- |
| 889612 | 12.12.2025 15:36:35.466 | 100,- | 17 000,- |
| 879985 | 12.12.2025 15:36:25.818 | 100,- | 16 900,- |
| 889612 | 12.12.2025 15:35:14.386 | 100,- | 16 800,- |
| 882162 | 12.12.2025 15:35:07.888 | 100,- | 16 700,- |
| 889612 | 12.12.2025 15:33:35.131 | 100,- | 16 600,- |
| 879621 | 12.12.2025 15:32:21.353 | 400,- | 16 500,- |
| 889612 | 12.12.2025 15:32:14.391 | 100,- | 16 100,- |
| 879621 | 12.12.2025 15:32:02.618 | 100,- | 16 000,- |
| 879985 | 12.12.2025 15:31:58.391 | 100,- | 15 900,- |
| 879621 | 12.12.2025 15:31:39.108 | 100,- | 15 800,- |
| 879985 | 12.12.2025 15:31:33.237 | 100,- | 15 700,- |
| 879621 | 12.12.2025 15:31:12.958 | 100,- | 15 600,- |
| 879985 | 12.12.2025 15:31:08.282 | 300,- | 15 500,- |
| 879621 | 12.12.2025 15:30:51.613 | 200,- | 15 200,- |
| 879985 | 12.12.2025 15:30:44.773 | 200,- | 15 000,- |
| 879621 | 12.12.2025 15:30:37.756 | 100,- | 14 800,- |
| 879985 | 12.12.2025 15:30:32.747 | 100,- | 14 700,- |
| 879621 | 12.12.2025 15:30:12.730 | 100,- | 14 600,- |
| 889612 | 12.12.2025 15:30:07.124 | 100,- | 14 500,- |
| 879621 | 12.12.2025 15:30:02.309 | 100,- | 14 400,- |
| 880461 | 12.12.2025 15:29:58.581 | 100,- | 14 300,- |
| 879985 | 12.12.2025 15:29:55.172 | 100,- | 14 200,- |
| 879621 | 12.12.2025 15:28:42.744 | 100,- | 14 100,- |
| 889612 | 12.12.2025 15:28:40.678 | 100,- | 14 000,- |
| 879621 | 12.12.2025 15:28:27.634 | 100,- | 13 900,- |
| 889612 | 12.12.2025 15:28:24.281 | 100,- | 13 800,- |
| 879621 | 12.12.2025 15:27:53.976 | 100,- | 13 700,- |
| 882162 | 12.12.2025 15:27:48.894 | 100,- | 13 600,- |
| 879621 | 12.12.2025 15:26:55.256 | 100,- | 13 500,- |
| 879621 | 12.12.2025 15:26:48.292 | 100,- | 13 400,- |
| 889612 | 12.12.2025 15:26:42.519 | 1 000,- | 13 300,- |
| 879621 | 12.12.2025 15:26:32.643 | 100,- | 12 300,- |
| 889612 | 12.12.2025 15:26:27.918 | 900,- | 12 200,- |
| 886727 | 12.12.2025 15:26:26.597 | 100,- | 11 300,- |
| 879621 | 12.12.2025 15:26:17.605 | 100,- | 11 200,- |
| 889612 | 12.12.2025 15:26:15.855 | 1 000,- | 11 100,- |
| 879621 | 12.12.2025 15:26:07.682 | 100,- | 10 100,- |
| 889612 | 12.12.2025 15:26:03.153 | 900,- | 10 000,- |
| 879621 | 12.12.2025 15:25:52.818 | 100,- | 9 100,- |
| 889612 | 12.12.2025 15:25:47.629 | 700,- | 9 000,- |
| 879621 | 12.12.2025 15:25:32.858 | 100,- | 8 300,- |
| 884276 | 12.12.2025 15:25:27.632 | 100,- | 8 200,- |
| 879621 | 12.12.2025 15:22:41.905 | 100,- | 8 100,- |
| 889612 | 12.12.2025 15:22:33.799 | 1 000,- | 8 000,- |
| 879621 | 12.12.2025 15:22:15.381 | 100,- | 7 000,- |
| 889612 | 12.12.2025 15:22:11.264 | 100,- | 6 900,- |
| 879621 | 12.12.2025 15:21:21.271 | 100,- | 6 800,- |
| 889612 | 12.12.2025 15:21:13.532 | 100,- | 6 700,- |
| 879621 | 12.12.2025 15:18:54.680 | 100,- | 6 600,- |
| 884276 | 12.12.2025 15:18:48.949 | 100,- | 6 500,- |
| 889612 | 12.12.2025 15:15:06.103 | 100,- | 6 400,- |
| 884276 | 12.12.2025 15:14:51.596 | 100,- | 6 300,- |
| 889612 | 12.12.2025 15:14:11.661 | 100,- | 6 200,- |
| 884276 | 12.12.2025 15:08:12.874 | 100,- | 6 100,- |
| 879621 | 12.12.2025 14:59:30.872 | 100,- | 6 000,- |
| 878531 | 12.12.2025 14:02:26.193 | 100,- | 5 900,- |
| 884276 | 11.12.2025 11:37:18.635 | 100,- | 5 800,- |