Aukce skončila.
Cena dosažená vydražením činí
18 000 Kč
Nejvyšší nabídku učinil účastník aukce
ID879190
Aukce pronájmu bytu z majetku Městské části Praha 3. Uzávěrka přihlášek do aukce včetně složení kauce 8.12.2025 do 18:00 hod (více v aukční kartě).
Účastnit aukce se mohou pouze fyzické osoby – občané ČR, Ukrajiny nebo členského státu Evropské unie nebo členského státu ESVO, tj. Lichtenštejnska, Švýcarska, Norska a Islandu.
Poloha:
Bytový dům je umístěn v ulici Táboritská v centru Žižkova, u Olšanského náměstí. Občanská vybavenost se nachází v blízkém okolí, OC Flora je jednu zastávku tramvají. Výborná dopravní dostupnost do centra, stanice tramvaje Olšanské náměstí je před domem, zastávka busu za rohem.
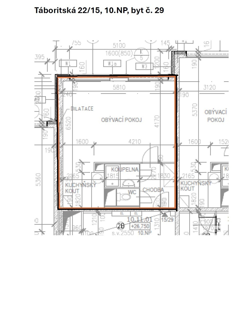
Popis bytu:
Byt se nachází v 9. patře desetipodlažního nově zrekonstruovaného domu s výtahem.
Dispozice: z chodby domu se vchází do předsíně bytu. Z předsíně jsou vstupy do dalších místností bytu. Okna jsou orientována sever s průhledem do ulice Baranova. K bytu patří sklepní kóje.
Kuchyňský kout je vybaven kuchyňskou linkou s dřezem, odtahovou digestoří a elektrickým sporákem s troubou. Koupelna je zařízena sprchou, umyvadlem, a místem pro připojení pračky. Samostatné WC je vybaveno kombi mísou.
Podlahy: vinylové, v koupelně a WC dlažba. Vytápění a teplá voda jsou zajištěny dálkové.
Výměry místností[1]:
Pokoj | 23,45 m2 |
Kuchyňský kout | 4,56 m2 |
Koupelna | 2,06 m2 |
WC | 0,99 m2 |
Předsíň | 4,20 m2 |
Sklep | 3,00 m2 |
Celkem | 38,26 m2 |
Třída energetické náročnosti budovy: C
Zálohy za služby pro 1 osobu/: 2 580 Kč/měsíc (v tom topení 1 400 Kč/byt), elektřina se převádí na nájemce.
Vyvolávací cena: 5 800 Kč/měsíc
Prohlídky 6 bytů – 1. část:
· čtvrtek 27. 11. 2025, 16:30 - 18:00
· středa 3. 12. 2025, 16:30 - 18:00
Adresa: Táboritská 15/22, Praha 3 - Žižkov
Byt si můžete prohlédnout kdykoliv ve vymezeném čase, není potřeba se objednávat.
Termíny prohlídek mohou být i v průběhu výběrového řízení upraveny.
Zodpovědná osoba:
Ing. Zdeněk Břeh
E-mail: zdenek.breh@gavlas.cz
Mobil: 777 721 509
Tel.: 221 666 666
[1] dle Evidenčního listu
Aukční karta: Aukční karta - Táboritská 15,29, IGN.pdf
1.NÁVOD _ Jak se zúčastnit aukce pronájmu bytu Praha 3 _ 12.VŘ.pdf
2.MANUAL _ How to participate in the auction Praha 3 _ 12.VŘ.pdf
3. NÁVOD _ Jak přihazovat v aukci.pdf
4.MANUAL _ How to bid at an auction with an auction wallet.pdf
Podminky_12._VR_P3_-_pronajmy_bytu_prilohy.pdf
Příloha č.1_seznam bytových jednotek.pdf
Příloha č. 2_vzor nájemní smlouvy.pdf
PENB Táboritská 15-22.pdf
Plánek - Táboritská 22 byt 29.pdf
| Účastník aukce | Čas příhozu | Výše příhozu | Nabídka |
|---|---|---|---|
| 879190 | 12.12.2025 15:09:46.312 | 100,- | 18 000,- |
| 889816 | 12.12.2025 15:09:40.105 | 100,- | 17 900,- |
| 879190 | 12.12.2025 15:07:44.696 | 100,- | 17 800,- |
| 883731 | 12.12.2025 15:07:32.408 | 100,- | 17 700,- |
| 879190 | 12.12.2025 15:07:26.786 | 100,- | 17 600,- |
| 889816 | 12.12.2025 15:07:17.900 | 100,- | 17 500,- |
| 879190 | 12.12.2025 15:07:00.700 | 100,- | 17 400,- |
| 883731 | 12.12.2025 15:06:55.707 | 100,- | 17 300,- |
| 879190 | 12.12.2025 15:05:04.832 | 100,- | 17 200,- |
| 880211 | 12.12.2025 15:04:59.825 | 100,- | 17 100,- |
| 879190 | 12.12.2025 15:03:54.537 | 100,- | 17 000,- |
| 883731 | 12.12.2025 15:03:47.709 | 100,- | 16 900,- |
| 879190 | 12.12.2025 15:03:24.428 | 100,- | 16 800,- |
| 880211 | 12.12.2025 15:03:20.246 | 100,- | 16 700,- |
| 879190 | 12.12.2025 15:02:49.355 | 100,- | 16 600,- |
| 880211 | 12.12.2025 15:02:44.908 | 100,- | 16 500,- |
| 879190 | 12.12.2025 15:02:39.682 | 100,- | 16 400,- |
| 880211 | 12.12.2025 15:02:33.672 | 100,- | 16 300,- |
| 879190 | 12.12.2025 15:01:55.297 | 100,- | 16 200,- |
| 880211 | 12.12.2025 15:01:48.029 | 100,- | 16 100,- |
| 879190 | 12.12.2025 15:01:09.845 | 100,- | 16 000,- |
| 889816 | 12.12.2025 15:01:05.205 | 200,- | 15 900,- |
| 879190 | 12.12.2025 15:00:54.481 | 100,- | 15 700,- |
| 880211 | 12.12.2025 15:00:48.104 | 100,- | 15 600,- |
| 879190 | 12.12.2025 14:59:54.255 | 100,- | 15 500,- |
| 880211 | 12.12.2025 14:59:51.243 | 100,- | 15 400,- |
| 879190 | 12.12.2025 14:59:21.572 | 100,- | 15 300,- |
| 880211 | 12.12.2025 14:59:13.564 | 100,- | 15 200,- |
| 879190 | 12.12.2025 14:58:44.506 | 100,- | 15 100,- |
| 879801 | 12.12.2025 14:58:42.014 | 100,- | 15 000,- |
| 879190 | 12.12.2025 14:58:35.849 | 100,- | 14 900,- |
| 879801 | 12.12.2025 14:58:32.067 | 100,- | 14 800,- |
| 879190 | 12.12.2025 14:58:30.444 | 100,- | 14 700,- |
| 879801 | 12.12.2025 14:58:22.358 | 100,- | 14 600,- |
| 879190 | 12.12.2025 14:58:18.365 | 100,- | 14 500,- |
| 879801 | 12.12.2025 14:58:11.807 | 100,- | 14 400,- |
| 879190 | 12.12.2025 14:58:10.710 | 100,- | 14 300,- |
| 879801 | 12.12.2025 14:58:02.015 | 100,- | 14 200,- |
| 879190 | 12.12.2025 14:57:59.519 | 100,- | 14 100,- |
| 879801 | 12.12.2025 14:57:51.995 | 100,- | 14 000,- |
| 879190 | 12.12.2025 14:57:48.632 | 100,- | 13 900,- |
| 879801 | 12.12.2025 14:57:41.239 | 100,- | 13 800,- |
| 879801 | 12.12.2025 14:57:37.183 | 100,- | 13 700,- |
| 879190 | 12.12.2025 14:57:34.452 | 100,- | 13 600,- |
| 879801 | 12.12.2025 14:57:23.840 | 100,- | 13 500,- |
| 879190 | 12.12.2025 14:57:20.267 | 100,- | 13 400,- |
| 879801 | 12.12.2025 14:57:17.033 | 100,- | 13 300,- |
| 879190 | 12.12.2025 14:57:15.597 | 100,- | 13 200,- |
| 879801 | 12.12.2025 14:57:09.530 | 100,- | 13 100,- |
| 879190 | 12.12.2025 14:37:05.421 | 100,- | 13 000,- |
| 879801 | 12.12.2025 14:36:27.714 | 400,- | 12 900,- |
| 879190 | 12.12.2025 14:36:22.364 | 100,- | 12 500,- |
| 879801 | 12.12.2025 14:36:15.145 | 1 000,- | 12 400,- |
| 879190 | 12.12.2025 14:36:07.603 | 100,- | 11 400,- |
| 879801 | 12.12.2025 14:35:54.897 | 100,- | 11 300,- |
| 879190 | 12.12.2025 14:35:49.133 | 100,- | 11 200,- |
| 879801 | 12.12.2025 14:35:42.229 | 600,- | 11 100,- |
| 879190 | 12.12.2025 14:35:29.085 | 100,- | 10 500,- |
| 879801 | 12.12.2025 14:35:10.140 | 100,- | 10 400,- |
| 879190 | 12.12.2025 14:34:52.520 | 100,- | 10 300,- |
| 879801 | 12.12.2025 14:34:45.755 | 1 000,- | 10 200,- |
| 879190 | 12.12.2025 14:34:37.026 | 100,- | 9 200,- |
| 879801 | 12.12.2025 14:34:30.053 | 100,- | 9 100,- |
| 879190 | 12.12.2025 14:34:26.603 | 100,- | 9 000,- |
| 879801 | 12.12.2025 14:34:18.707 | 400,- | 8 900,- |
| 879190 | 12.12.2025 14:34:09.294 | 100,- | 8 500,- |
| 879801 | 12.12.2025 14:33:57.705 | 500,- | 8 400,- |
| 879190 | 12.12.2025 14:33:48.653 | 100,- | 7 900,- |
| 879801 | 12.12.2025 14:33:35.012 | 100,- | 7 800,- |
| 879190 | 12.12.2025 14:33:33.348 | 100,- | 7 700,- |
| 879801 | 12.12.2025 14:33:24.843 | 100,- | 7 600,- |
| 879190 | 12.12.2025 14:33:20.874 | 100,- | 7 500,- |
| 879801 | 12.12.2025 14:33:10.471 | 100,- | 7 400,- |
| 879190 | 12.12.2025 14:33:04.942 | 100,- | 7 300,- |
| 879801 | 12.12.2025 14:32:57.599 | 100,- | 7 200,- |
| 879190 | 12.12.2025 14:32:35.465 | 100,- | 7 100,- |
| 879801 | 12.12.2025 14:32:11.715 | 100,- | 7 000,- |
| 879190 | 12.12.2025 14:32:07.421 | 100,- | 6 900,- |
| 879801 | 12.12.2025 14:31:30.797 | 100,- | 6 800,- |
| 879190 | 12.12.2025 14:31:28.362 | 100,- | 6 700,- |
| 879801 | 12.12.2025 14:30:50.100 | 100,- | 6 600,- |
| 879190 | 11.12.2025 10:07:27.556 | 100,- | 6 500,- |
| 880211 | 11.12.2025 10:05:06.452 | 500,- | 6 400,- |
| 879190 | 11.12.2025 10:02:15.854 | 100,- | 5 900,- |