Nejvyšší nabídku učinil účastník aukce
vyhlášená
Investiční byt OV 1+1 Lužánecká (36 m²), Brno – Černá Pole
Začátek aukce
18.2.2026, 10:00
Konec aukce
19.2.2026, 16:00
Minimální příhoz
20 000 Kč
Nejnižší podání
2 900 000 Kč
Aktuální cena

Aukce ještě nezačala.




Do zahájení aukce zbývá:

Číslo
B2/2/2026
Kategorie
Aukce dobrovolná
Adresa

Popis objektu

Uzavřená aukce pro vyhlašovatelem vybrané zájemce.

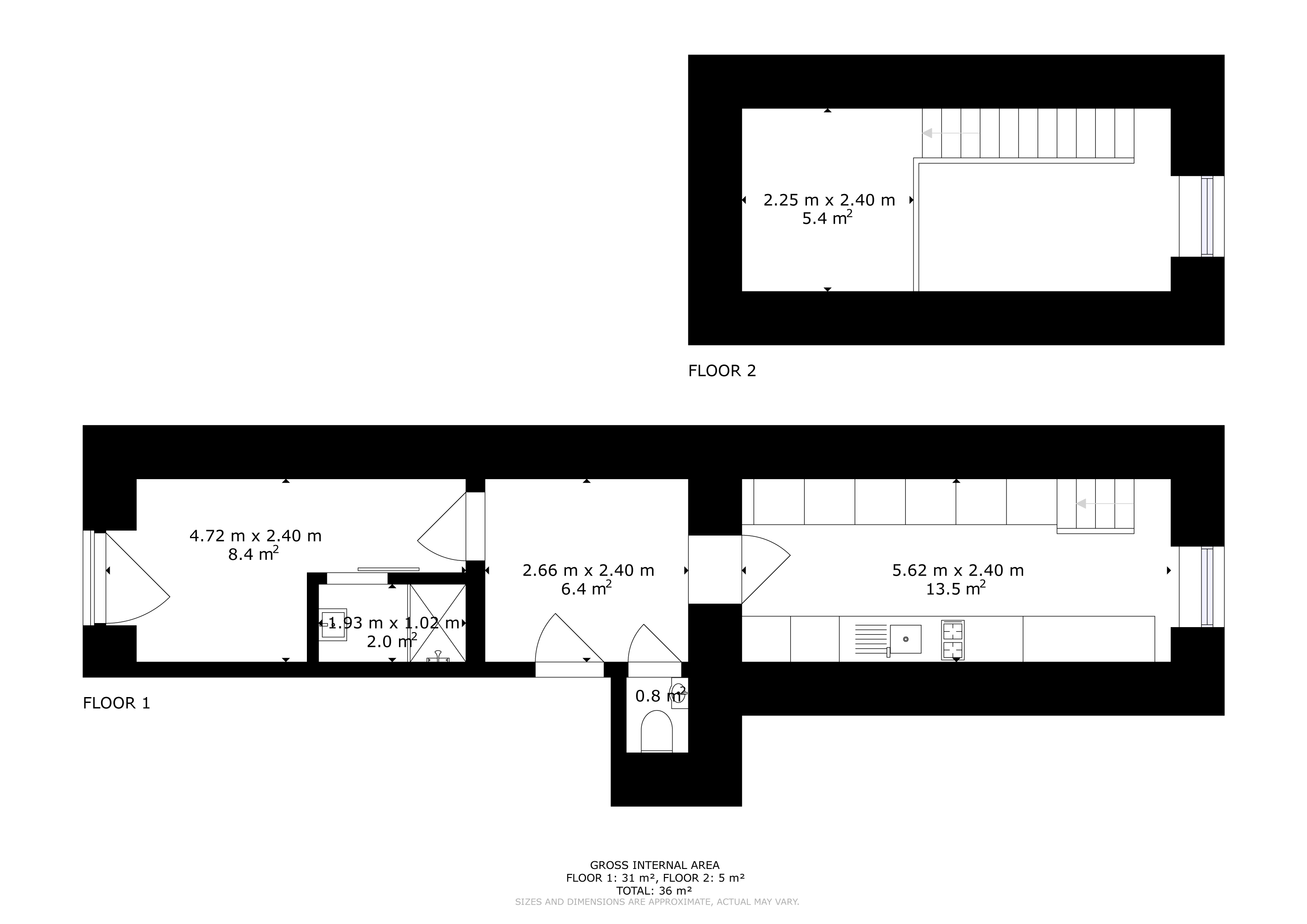
Byt v osobním vlastnictví o dispozici 1+1 a výměře 36 m², umístěný v 1. patře cihlového domu na prestižní adrese ul. Lužánecká 1887/8, Brno – Černá Pole, pár kroků od parku Lužánky. Podle prohlášení vlastníka má byt výměru 31,52 m² a zděný sklep 7,8 m².
Byt je po zdařilé rekonstrukci a představuje ideální investiční příležitost s okamžitým potenciálem pronájmu – bez nutnosti dalších investic.

Poloha předmětu aukce:

Předmět aukce je situovaný v žádané a atraktivní lokalitě v blízkosti centra Brna a velkého parku Lužánky v dosahu MHD 2. min. pěší chůzí. Velký obchodní dům v dosahu 5 min. Jízdy autem, v docházkové vzdálenosti jsou divadla, restaurace, kina, lékaři i menší obchody. Vzdálenost od centra je 7 min. pěší chůze, 1 zastávka MHD.

 

Adresa: Lužánecká 1887/8, 602 00 Brno – Černá Pole

 

Stručný popis předmětu aukce:

Předmětem aukce je bytová jednotka 1+1 o ploše 31,52 m2 (dále jen byt) nacházející se v 1.NP domu a sestává se z 5 místností: pokoj, kuchyň, předsíň, WC, koupelna, příslušenstvím je sklep o velikosti 7,80 m2 umístěný v 1.PP (vše dle PV). V kuchyni je umístěná galerie na spaní o výměře 5,4 m(výměra je převzatá z digitálního měření při výrobě 3D prohlídky kamerou matterport), ke galerii vedou schody přímo z kuchyně. Místnost kuchyně s galerií je orientována do ulice, pokoj je orientován do vnitrobloku.

Byt je volný, k bytu není uzavřena žádná nájemní smlouva. Byt je vytápěný elektrickým kotlem umístěným nad vestavěnou koupelnou, ohřev teplé vody je el. bojlerem taktéž umístěným nad koupelnou. V kuchyni je kuchyňská linka s vestavnou myčkou, várnou el. deskou, vestavnou lednicí a pračkou. Na protější stěně kuchyňské linky jsou úložné prostory umístěné pod schodištěm na patio. Byt cca před 10 lety prošel rekonstrukcí, kdy byla dodatečně zbudována koupelna se sprchovacím koutem a umyvadlem, která je umístěná v pokoji bytu jako vestavba. Nad koupelnou jsou umístěny el. kotel a el. bojler. V místnosti kuchyně byly zbudovány schody do galerie umístěné u stropu kuchyně. Tato galerie na spaní má dle měření kamerou matterport 5,4 m², je vyrobené z dřevěných trámů a dřevěné desky. Součástí prodeje je i nábytek nacházející se v bytě. Výjimkou je velké zrcadlo s dřevěným rámem umístěné v předsíně bytu.

 

Odchylky od Prohlášení vlastníka:

- byt má zbudovanou koupelnu

- v bytě není místnost označená v Prohlášení vlastníka jako spíž

- byt se nachází v 2.NP – v PV je uvedeno 1.NP

- v bytě není plynový sporák, vedení plynových trubek bylo odstraněno a plynoměr demontován

 

Výměry místností: (dle digitálního měření kamerou matterport)

kuchyně 13,5 m2, pokoj 8,4 m2, koupelna 2 m2, předsíň bytu 6,4 m2, WC 0,8 m2 a galerie na spaní 5,4 m2.

 

Vybavení kuchyně:

kuchyňská linka – na druhé stěně linky jsou úložné prostory umístěné pod schodištěm do galerie
elektrická varná deska

vestavěná lednice

vestavěná mikrovlnná trouba

pračka


Proč je byt ideální investicí
• dlouhodobě vysoká poptávka po nájemním bydlení v lokalitě Lužánky
• dispozice vhodná pro jednotlivce / pár / studenty
• klidný vnitroblok + centrum města
• volný ihned – možnost okamžitého generování výnosu
• osobní vlastnictví = snadné financování
• kompletní rekonstrukce bytu proběhla cca 10let zpátky, včetně všech rozvodů a omítek, nová koupelna, elektřina celá v mědi včetně světel.

Závazky na předmětu aukce

Zástavní právo a zápisy s ním související - oprávnění pro: ČSOB Hypotéční banka, a. s., zapsané v katastru nemovitostí pod V-6613/2017-702, právní účinky vkladu práva ke dni 23.7.2017. Aktuální výše dluhu ke dni 27.1.2026 činí  1.481.061,77 Kč. V kupní smlouvě je uveden závazek vyhlašovatele uhradit bance přímo při výplatě kupní ceny z úschovy dostatečnou částku k úhradě dluhu vůči bance, čímž dojde k zániku zástavního práva. 

Předmět aukce
Jednotka č. 1887/3 vymezená podle zákona o vlastnictví bytů (byt), jednotka je vymezena v budově Černá Pole, č.p. 1887, stojící na pozemku parc.č. 3711, včetně spoluvlastnického podílu na společných částech budovy č.p. 1887 a na pozemcích parc.č. 3711, 3712 o velikosti 3932/52232, vše v katastrálním území Černá Pole, obec Brno, včetně všech součástí a příslušenství.
Chcete se účastnit aukce?

Soubory ke stažení


  Aukční karta: Aukční karta - byt Lužánky.pdf


  Příloha AK_Rezervacni smlouva, byt Lužánky.pdf
  Příloha AK_Kupní smlouva, byt Lužánky.pdf
  Jak se zúčastnit aukce - Lužánky.pdf
  Jak přihazovat v aukci.pdf
  LV 7458 Černá Pole.pdf
  Prohlášení vlastníků Lužánecká.pdf
  Bezdlužnost.pdf
  Evidenční list.pdf
  Stanovy.pdf
  PENB BD B_Lužánecká 8_p_PENB_vyhl264.pdf
  plánek_byt 1+1 Brno.pdf

Umístění objektu

Adresa
Lužánecká 1887/8, Brno – Černá Pole

Fotogalerie

 

Máte otázky?
Kontaktujte nás