Aukce skončila.
Cena dosažená vydražením činí
33 700 Kč
Nejvyšší nabídku učinil účastník aukce
ID902439
Aukce pronájmu bytu z majetku Městské části Praha 3. Uzávěrka přihlášek do aukce včetně složení kauce do 24. 3. 2026 do 18:00 hod (více v aukční kartě).
Účastnit aukce se mohou pouze fyzické osoby – občané ČR, členského státu Evropské unie, Ukrajiny nebo členského státu ESVO, tj. Lichtenštejnska, Švýcarska, Norska a Islandu.
Poloha:
Byt se nachází v činžovním domě na křížení ulic Jana Želivského a Malešická. Výborná dostupnost: zastávka autobusu a tramvaje Biskupcova cca 200 m. Občanská vybavenost včetně školek a škol v blízkém okolí, v ulicí Jana Želivského a na Ohradě, OC Flora je 10 min jízdy tramvají.
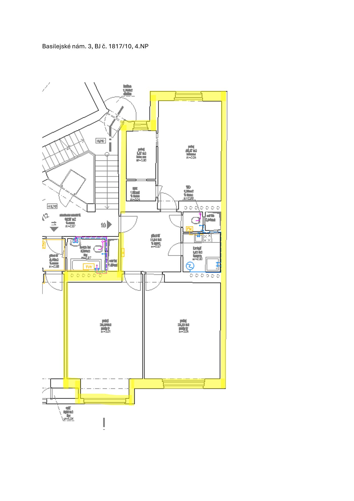
Popis bytu:
Byt po rekonstrukci se nachází ve 3. patře cihlového domu z r. 1932 s výtahem.
Dispozice: z chodby domu se vchází do předsíně. Z předsíně je vstup do obou pokojů, kuchyně, koupelny a WC. Z kuchyně je přístupná spíž a komora – bývalý pokojík pro služku. Okna pokojů jsou orientována na východ na Basilejské náměstí a kuchyň do vnitrobloku. K bytu patří sklepní kóje ve společných prostorách domu v 1. PP.
Kuchyňská linka je vybavena dřezem, digestoří, sklokeramickou varnou deskou a el. troubou.
Koupelna je zařízena vanou, umyvadlem, zrcadlem, topným žebříkem, místem pro připojení pračky a el. bojlerem. Samostatné WC je zařízeno kombi mísou.
Podlahy: v pokojích a kuchyni plovoucí laminátová, v předsíni teraso, v koupelně a WC dlažba.
Okna jsou dřevěná EURO.
Topení je zajištěno plynovým kotlem a teplá voda el. bojlerem.
Výměry místností[1]:
Obytná místnost | 25,90 m2 |
Obytná místnost | 23,32 m2 |
Kuchyně | 20,17 m2 |
Předsíň | 11,04 m2 |
Spíž | 1,82 m2 |
Komora | 4,47 m2 |
WC | 1,20 m2 |
Koupelna | 4,52 m2 |
Sklep | 2,39 m2 |
Třída energetické náročnosti budovy: F
Zálohy za služby pro 1 osobu/měsíc: 1 250 Kč, elektřina a plyn se převádí na nájemce.
Vyvolávací cena: 13 900 Kč/měsíc
Prohlídky:
· středa 4. 3. 2026, 18:10 - 18:30
· středa 18. 3. 2026, 18:10 - 18:30
Byt si můžete prohlédnout kdykoliv ve vymezeném čase, není potřeba se objednávat.
Termíny prohlídek mohou být i v průběhu výběrového řízení upraveny.
Adresa: Basilejské nám. 1807/3, Praha 3 – Žižkov
Zodpovědná osoba:
Ing. Zdeněk Břeh
E-mail: zdenek.breh@gavlas.cz
Mobil: 777 721 509
Tel.: 221 666 666
[1] dle Evidenčního listu
Pronájem bytové jednotky č. 1807/10 (v Evidenčním listu byt veden pod č. bytu/ev. číslo 10) umístěné v budově č.p. 1807 v katastrálním území Žižkov, obec Praha
Aukční karta: Aukční karta - Basilejské nám 1807,10.pdf
1. NÁVOD _ Jak se zúčastnit aukce pronájmu bytu Praha 3 _ 13.VŘ.pdf
2. MANUAL _ How to participate in the auction Praha 3 _ 13.VŘ.pdf
3. NÁVOD _ Jak přihazovat v aukci.pdf
4.MANUAL _ How to bid at an auction with an auction wallet.pdf
Podminky_13._VR_P3_-_pronajmy_bytu_prilohy.pdf
Příloha č.1 - seznam bytových jednotek_Podmínky_13.VR.P3.pdf
Příloha č.2 - vzor nájemní smlouvy_Podmínky_13.VR.P3.pdf
PENB Basilejské náměstí 9.pdf
Plánek - Basilejské nám. 3, BJ č. 1817-10, 4.NP.pdf
| Účastník aukce | Čas příhozu | Výše příhozu | Nabídka |
|---|---|---|---|
| 902439 | 30.03.2026 09:50:57.302 | 1 000,- | 33 700,- |
| 901440 | 30.03.2026 09:48:12.041 | 100,- | 32 700,- |
| 902439 | 30.03.2026 09:40:51.457 | 1 000,- | 32 600,- |
| 901440 | 30.03.2026 09:40:18.165 | 100,- | 31 600,- |
| 902439 | 30.03.2026 09:28:40.997 | 1 000,- | 31 500,- |
| 901440 | 30.03.2026 09:23:12.608 | 100,- | 30 500,- |
| 902439 | 30.03.2026 09:11:00.233 | 1 000,- | 30 400,- |
| 901440 | 30.03.2026 09:00:51.083 | 100,- | 29 400,- |
| 902439 | 30.03.2026 07:41:19.336 | 1 000,- | 29 300,- |
| 901440 | 29.03.2026 22:54:36.625 | 100,- | 28 300,- |
| 904755 | 29.03.2026 18:25:43.198 | 100,- | 28 200,- |
| 901440 | 29.03.2026 17:15:20.372 | 100,- | 28 100,- |
| 900623 | 29.03.2026 17:09:49.962 | 900,- | 28 000,- |
| 901440 | 29.03.2026 17:06:22.610 | 100,- | 27 100,- |
| 903755 | 29.03.2026 17:04:50.518 | 300,- | 27 000,- |
| 902439 | 29.03.2026 17:04:00.315 | 1 000,- | 26 700,- |
| 903755 | 29.03.2026 17:01:10.606 | 500,- | 25 700,- |
| 902439 | 29.03.2026 17:00:24.492 | 1 000,- | 25 200,- |
| 903755 | 29.03.2026 16:59:57.741 | 300,- | 24 200,- |
| 902439 | 29.03.2026 16:52:47.851 | 1 000,- | 23 900,- |
| 903755 | 29.03.2026 16:51:58.379 | 500,- | 22 900,- |
| 902439 | 29.03.2026 16:50:23.822 | 1 000,- | 22 400,- |
| 901440 | 29.03.2026 16:34:17.141 | 100,- | 21 400,- |
| 900623 | 29.03.2026 16:20:02.561 | 1 000,- | 21 300,- |
| 902439 | 29.03.2026 16:09:04.292 | 1 000,- | 20 300,- |
| 900623 | 29.03.2026 13:58:25.494 | 1 000,- | 19 300,- |
| 902439 | 29.03.2026 13:46:20.973 | 1 000,- | 18 300,- |
| 899488 | 29.03.2026 13:11:11.995 | 100,- | 17 300,- |
| 900623 | 28.03.2026 16:06:21.653 | 100,- | 17 200,- |
| 904755 | 28.03.2026 15:54:16.554 | 100,- | 17 100,- |
| 900623 | 28.03.2026 15:30:29.919 | 100,- | 17 000,- |
| 896604 | 28.03.2026 14:00:02.964 | 100,- | 16 900,- |
| 900623 | 27.03.2026 23:38:43.927 | 100,- | 16 800,- |
| 904300 | 27.03.2026 20:18:21.625 | 100,- | 16 700,- |
| 900623 | 27.03.2026 18:04:43.304 | 100,- | 16 600,- |
| 896604 | 27.03.2026 17:56:55.008 | 100,- | 16 500,- |
| 900623 | 27.03.2026 15:24:22.756 | 100,- | 16 400,- |
| 901440 | 27.03.2026 15:10:38.228 | 100,- | 16 300,- |
| 900623 | 27.03.2026 14:08:16.436 | 100,- | 16 200,- |
| 912045 | 27.03.2026 14:06:32.535 | 100,- | 16 100,- |
| 912045 | 27.03.2026 14:05:30.211 | 100,- | 16 000,- |
| 904755 | 27.03.2026 13:51:49.849 | 100,- | 15 900,- |
| 912045 | 27.03.2026 12:50:41.645 | 100,- | 15 800,- |
| 900623 | 27.03.2026 12:49:02.290 | 100,- | 15 700,- |
| 912045 | 27.03.2026 12:37:36.004 | 100,- | 15 600,- |
| 900623 | 27.03.2026 12:26:49.208 | 100,- | 15 500,- |
| 913111 | 27.03.2026 11:51:20.608 | 100,- | 15 400,- |
| 912045 | 27.03.2026 11:11:16.815 | 100,- | 15 300,- |
| 899488 | 27.03.2026 10:54:07.826 | 100,- | 15 200,- |
| 900623 | 27.03.2026 10:21:31.041 | 100,- | 15 100,- |
| 904098 | 27.03.2026 10:19:01.904 | 100,- | 15 000,- |
| 900623 | 27.03.2026 10:17:17.486 | 100,- | 14 900,- |
| 904098 | 27.03.2026 10:14:34.544 | 100,- | 14 800,- |
| 904098 | 27.03.2026 10:13:54.506 | 100,- | 14 700,- |
| 904098 | 27.03.2026 10:13:30.712 | 100,- | 14 600,- |
| 910229 | 27.03.2026 10:04:15.642 | 100,- | 14 500,- |
| 899034 | 27.03.2026 10:00:18.795 | 100,- | 14 400,- |