Nejvyšší nabídku učinil účastník aukce
vyhlášená
Pronájem zrekonstruovaného 1+1 (51 m²) se sklepem, Hartigova 2395/194, Praha 3 - Žižkov
Začátek aukce
nebyl stanoven
Konec aukce
nebyl stanoven
Minimální příhoz
100 Kč
Nejnižší podání
8 100 Kč
Uzávěrka přihlášek: 24.03.2026
Aktuální cena

Aukce ještě nezačala.


Číslo
P3PII/13/2395/7
Kategorie
Aukce dobrovolná
Adresa

Popis objektu

Aukce pronájmu bytu z majetku Městské části Praha 3. Uzávěrka přihlášek do aukce včetně složení kauce do 24. 3. 2026 do 18:00 hod (více v aukční kartě).

 

Účastnit aukce se mohou pouze fyzické osoby – občané ČR, členského státu Evropské unie, Ukrajiny nebo členského státu ESVO, tj. Lichtenštejnska, Švýcarska, Norska a Islandu.

 

Poloha:

Byt se nachází v činžovním domě na tepně Žižkova, Hartigově ulici, mezi Vozovnou Žižkov a kolejemi VŠE. Výborná dostupnost: zastávka tramvaje Strážní je prakticky u domu Občanská vybavenost v okolí, v ulicí Hartigova a na Ohradě; Kaufland Třešňovka je vzdálen 3 zastávky tramvají

Popis bytu:

Byt po rekonstrukci se nachází v 1. patře cihlového domu z r. 1960 s výtahem.

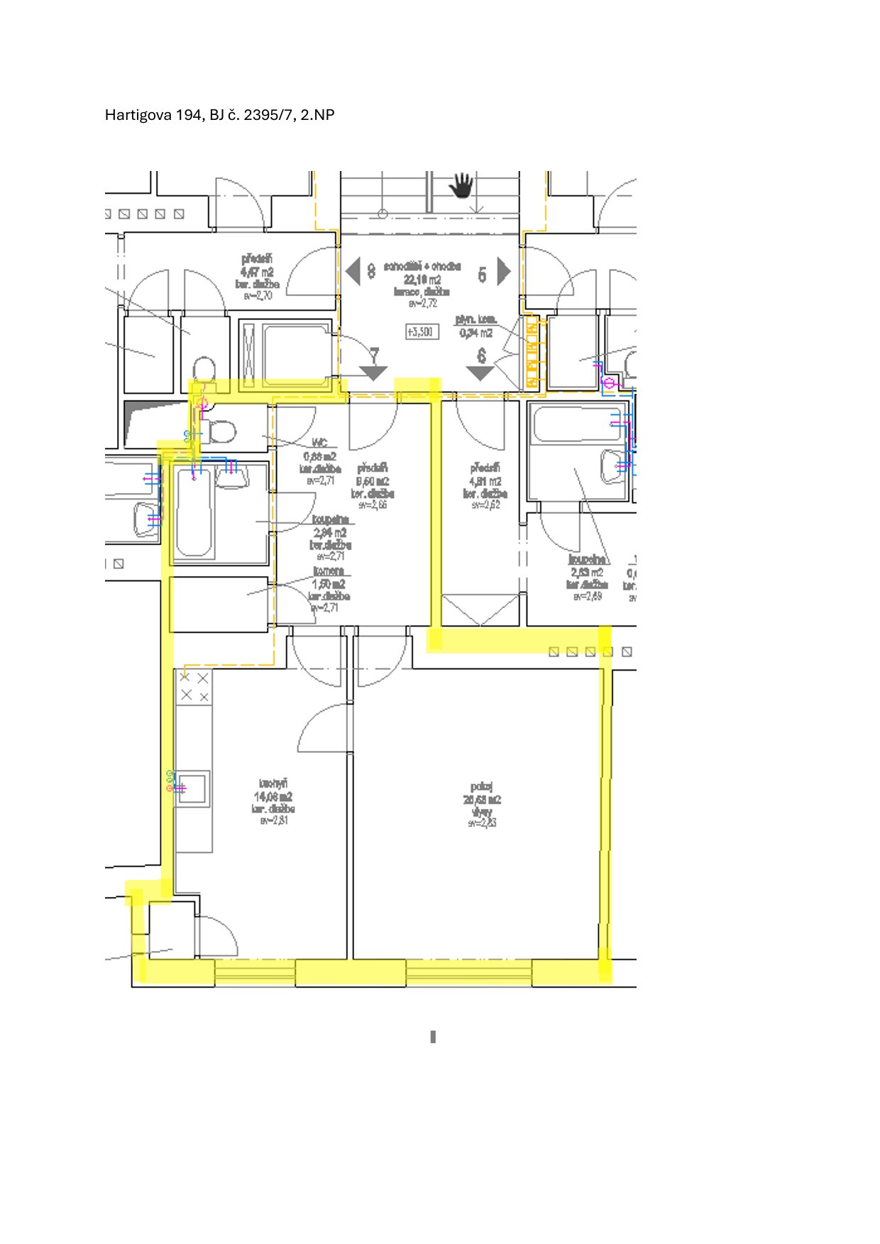
Dispozice: z chodby domu se vchází do předsíně. Z předsíně je vstup do pokoje, kuchyně, koupelny, WC a komory. V kuchyni se nachází spíž, z kuchyně je dále vstup do pokoje. Okna jsou orientováno na jih do vnitrobloku.

Kuchyňská linka je vybavena dřezem, digestoří, plynovou varnou deskou a el. troubou.

Koupelna je zařízena sprchovým koutem, umyvadlem a místem pro připojení pračky.

Podlahy: předsíň, kuchyň, WC a koupelna dlažba, zbytek vinylová.

Okna jsou dřevěná EURO.

Topení a teplá voda jsou zajištěny centrálním plynovým kotlem v domě.

Výměry místností[1]:

Obytná místnost

21,00 m2

Kuchyně

14,00 m2

Předsíň

9,50 m2

Koupelna

3,00 m2

WC

1,00 m2

Komora

1,50 m2

Spíž

1,00 m2

Sklep

2,50 m2

 

Třída energetické náročnosti budovy: D

Zálohy za služby pro 1 osobu/měsíc: budou upřesněny, elektřina a plyn se převádí na nájemce.

Vyvolávací cena: 8 100 Kč/měsíc

 

Prohlídky:

·           středa 4. 3. 2026, 16:30 - 18:00

·           středa 18. 3. 2026, 16:30 - 18:00

 

Byt si můžete prohlédnout kdykoliv ve vymezeném čase, není potřeba se objednávat.

Termíny prohlídek mohou být i v průběhu výběrového řízení upraveny.

 

AdresaHartigova 2395/194Praha 3 – Žižkov

 

Zodpovědná osoba:

Ing. Zdeněk Břeh

E-mail: zdenek.breh@gavlas.cz

Mobil: 777 721 509

Tel.: 221 666 666


[1] dle  Evidenčního listu

Předmět aukce

Pronájem bytové jednotky č. 2395/7 (v Evidenčním listu byt veden pod č. bytu/ev. číslo 7) umístěné v budově č.p. 2395 v katastrálním území Žižkov, obec Praha (dále také jen „předmět aukce“ nebo „byt“).


Zaslat přihláškuChcete se účastnit aukce?
Soubory ke stažení


  Aukční karta: Aukční karta - Hartigova 2395,7,.pdf


  1. NÁVOD _ Jak se zúčastnit aukce pronájmu bytu Praha 3 _ 13.VŘ.pdf
  2. MANUAL _ How to participate in the auction Praha 3 _ 13.VŘ.pdf
  4.MANUAL _ How to bid at an auction with an auction wallet.pdf
  3. NÁVOD _ Jak přihazovat v aukci.pdf
  Podminky_13._VR_P3_-_pronajmy_bytu_prilohy.pdf
  Příloha č.1 - seznam bytových jednotek_Podmínky_13.VR.P3.pdf
  Příloha č.2 - vzor nájemní smlouvy_Podmínky_13.VR.P3.pdf
  Hartigova 2394-192 a 2395-194_PENB_11-2015.pdf
  Plánek Hartigova 194 byt č. 7.pdf

Umístění objektu

Adresa
Hartigova 2395/194, Praha 3 - Žižkov

Fotogalerie

 
Účastník aukce Čas příhozu Výše příhozu Nabídka

Máte otázky?
Kontaktujte nás