Aukce skončila.
Cena dosažená vydražením činí
8 317 190 Kč
Nejvyšší nabídku učinil účastník aukce
ID285311
Aukce bytu z majetku Městské části Praha 5. Uzávěrka přihlášek do aukce včetně složení kauce do 15.3.2018 do 18:00 hod.
Účastnit aukce se mohou pouze fyzické osoby – občané ČR nebo občané států EU nebo občané Lichtenštejnska, Švýcarska, Norska či Islandu (více v aukční kartě).
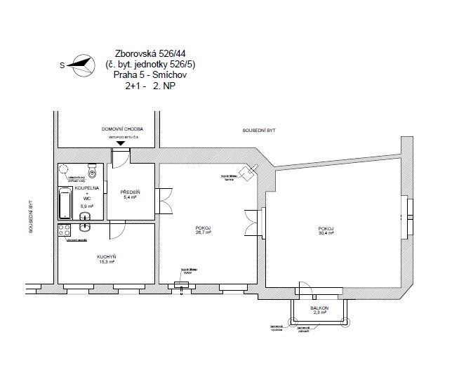
Poloha:
Nárožní byt 2+1 (
Pouhé 3 minuty chůzí od domu začínají krásy Petřínských sadů. V blízkém okolí se nachází neorenesanční kostel sv. Václava, Švandovo divadlo a mnoho dalších. Obchodní centrum Nový Smíchov s multikinem je vzdáleno pouze 9 minut chůzí a na metro „B“ Anděl jsou další 3 minuty (anebo dvě zastávky tramvají). V blízkosti se nachází mateřská, základní i střední školy, restaurace, kavárny i obchody.
Popis bytu:
Nárožní
byt 2+1 s balkonem o celkové podlahové ploše cca
Byt obsahuje 2 krásné světlé, prostorné pokoje, kuchyň, velkou koupelnu, předsíň a balkon. Vstupními dveřmi se vchází do předsíně, ze které je vstup do pokoje, kuchyně a velké koupelny s vanou, umyvadlem, el. bojlerem a WC. Pokojem se prochází do druhého pokoje, který má okna jak do ulice Vodní, tak do Zborovské. Z pokoje je přímý vstup na krásný kamenný balkon s masivním kamenným zábradlím, doplněný sochařskou výzdobou.
Pokoje jsou světlé, prostorné s dřevěnými dvoukřídlými dveřmi, špaletovými okny a dřevěnými parketami. Vytápění je lokální plynové. V bytě je odpojena dodávka elektrické energie.
Z bytu je vstup na balkon o výměře
Dle sdělení předsedkyně SVJ jsou v suterénu sklepní prostory, které je možno po dohodě s SVJ využívat.
Celková
podlahová plocha bytu:[1] cca
Vnitřní užitná
plocha:[2]
|
Pokoj |
|
|
Pokoj |
|
|
Kuchyň |
|
|
Koupelna s WC |
|
|
Předsíň |
|
|
|
|
|
Balkon[3] |
|
K bytu náleží podíl na společných částech domu a
pozemku ve výši 837/16624.
Popis domu:
Nárožní novorenesanční dům pochází z druhé poloviny 19. století. Jedná se o nádherný dům s dochovanou původní fasádou a nedotčeným architektonickým stylem, který čerpal inspiraci v antické architektuře. Činžovní dům je dále zdoben starými kamennými balkony obohacené masivním kamenným zábradlím a jemnými vysokými sochami mezi okny. Objekt svým vzhledem i pojetím fasády odpovídá době jeho vzniku, hmotově i výrazem zapadá do místní lokality bydlení městského typu. SVJ plánuje výměnu oken, opravu fasády a vybudování výtahu.
Dle informací od SVJ: Okolo r. 2000 v domě proběhla rekonstrukce vodovodu, odpadů, plynovodu a elektřiny. Společná televizní anténa v r. 2015. Nová střecha byla dělána v rámci půdní vestavby v r. 2002.
Je plánována výstavba
výtahu, oprava fasády a výměna oken.
Třída
energetické náročnosti budovy: E
Hypotéka:
Na koupi bytu je možno použít hypotéční úvěr.
Prohlídky:
·
středa 21.2.2018,
15:00 – 17:00 hod.
·
čtvrtek
8.3.2018, 15:00 – 17:00 hod.
Byt (spolu s dalšími byty zařazenými do prohlídky
v daný den) si můžete prohlédnout kdykoliv ve vymezeném čase, není potřeba
se objednávat.
Případné
další mimořádné prohlídky pouze po dohodě s poskytovatelem, jejich konání
není možno nárokovat.
Adresa: Zborovská
526/44, Praha 5 - Smíchov, byt č. 526/05¨
Zodpovědná osoba:
Ing. Kristina
Gavlasová
E-mail: kristinag@gavlas.cz
Mobil: 777 092 890
Tel.: 221 666 666
Kontakt pro hypotéky:
Leona Nechvílová
Mobil: 603 527
171
E-mail: leona.nechvilova@gmail.com
Antonín Petrskovský
Mobil: 608 981 771
E-mail: antonin.petrskovsky@sbelter.cz
Aukční karta: Aukční karta - Zborovská 526-5.pdf
Podmínky III. VŘ P5 vč. příloh.pdf
Vzorová KS dle BZ příloha č. 2.pdf
Jak se zúčastnit aukce Praha 5 - III.VŘ.pdf
Základní charakteristika Zborovská 526_5.pdf
Dispozice_Zborovska-526_44-byt-5.pdf
PENB 526.pdf
Prohlášení vlastníka 526-44.pdf
Stanovy Zborovská 526-44.pdf
Výpis z katastru 526-5.pdf
| Účastník aukce | Čas příhozu | Výše příhozu | Nabídka |
|---|---|---|---|
| 285311 | 26.03.2018 13:17:07.124 | 20 000,- | 8 317 190,- |
| 271755 | 26.03.2018 13:16:24.958 | 5 000,- | 8 297 190,- |
| 285311 | 26.03.2018 13:15:46.702 | 70 000,- | 8 292 190,- |
| 271755 | 26.03.2018 13:15:23.642 | 5 000,- | 8 222 190,- |
| 285311 | 26.03.2018 13:14:45.414 | 25 000,- | 8 217 190,- |
| 271755 | 26.03.2018 13:14:32.396 | 5 000,- | 8 192 190,- |
| 285311 | 26.03.2018 13:12:46.755 | 50 000,- | 8 187 190,- |
| 271755 | 26.03.2018 13:12:31.800 | 5 000,- | 8 137 190,- |
| 285311 | 26.03.2018 13:11:23.842 | 20 000,- | 8 132 190,- |
| 271755 | 26.03.2018 13:11:09.370 | 5 000,- | 8 112 190,- |
| 285311 | 26.03.2018 13:09:51.151 | 15 000,- | 8 107 190,- |
| 271755 | 26.03.2018 13:09:47.372 | 5 000,- | 8 092 190,- |
| 285311 | 26.03.2018 13:07:56.555 | 50 000,- | 8 087 190,- |
| 291147 | 26.03.2018 13:07:03.830 | 5 000,- | 8 037 190,- |
| 285311 | 26.03.2018 13:05:05.625 | 10 000,- | 8 032 190,- |
| 271755 | 26.03.2018 13:04:57.330 | 30 000,- | 8 022 190,- |
| 285311 | 26.03.2018 13:04:37.393 | 5 000,- | 7 992 190,- |
| 271755 | 26.03.2018 13:04:31.596 | 30 000,- | 7 987 190,- |
| 285311 | 26.03.2018 13:04:13.029 | 10 000,- | 7 957 190,- |
| 271755 | 26.03.2018 13:04:04.052 | 30 000,- | 7 947 190,- |
| 285311 | 26.03.2018 13:03:24.560 | 5 000,- | 7 917 190,- |
| 291147 | 26.03.2018 13:03:19.029 | 5 000,- | 7 912 190,- |
| 271755 | 26.03.2018 13:03:17.605 | 20 000,- | 7 907 190,- |
| 285311 | 26.03.2018 13:01:25.082 | 5 000,- | 7 887 190,- |
| 276841 | 26.03.2018 13:01:17.674 | 10 000,- | 7 882 190,- |
| 285311 | 26.03.2018 12:59:37.372 | 5 000,- | 7 872 190,- |
| 276841 | 26.03.2018 12:59:31.396 | 10 000,- | 7 867 190,- |
| 285311 | 26.03.2018 12:58:02.441 | 15 000,- | 7 857 190,- |
| 285311 | 26.03.2018 12:56:52.089 | 5 000,- | 7 842 190,- |
| 276841 | 26.03.2018 12:56:46.640 | 15 000,- | 7 837 190,- |
| 285311 | 26.03.2018 12:55:27.017 | 15 000,- | 7 822 190,- |
| 276841 | 26.03.2018 12:55:18.744 | 10 000,- | 7 807 190,- |
| 285311 | 26.03.2018 12:54:09.211 | 55 000,- | 7 797 190,- |
| 271755 | 26.03.2018 12:53:45.449 | 15 000,- | 7 742 190,- |
| 285311 | 26.03.2018 12:52:55.835 | 10 000,- | 7 727 190,- |
| 271755 | 26.03.2018 12:52:43.864 | 5 000,- | 7 717 190,- |
| 285311 | 26.03.2018 12:52:21.568 | 5 000,- | 7 712 190,- |
| 271755 | 26.03.2018 12:52:14.678 | 40 000,- | 7 707 190,- |
| 285311 | 26.03.2018 12:51:32.347 | 20 000,- | 7 667 190,- |
| 271755 | 26.03.2018 12:51:10.929 | 5 000,- | 7 647 190,- |
| 285311 | 26.03.2018 12:49:59.403 | 15 000,- | 7 642 190,- |
| 271755 | 26.03.2018 12:49:50.953 | 5 000,- | 7 627 190,- |
| 285311 | 26.03.2018 12:49:41.417 | 20 000,- | 7 622 190,- |
| 271755 | 26.03.2018 12:49:30.923 | 50 000,- | 7 602 190,- |
| 282996 | 26.03.2018 12:48:16.313 | 25 000,- | 7 552 190,- |
| 285311 | 26.03.2018 12:47:32.146 | 55 000,- | 7 527 190,- |
| 276841 | 26.03.2018 12:47:31.047 | 20 000,- | 7 472 190,- |
| 271755 | 26.03.2018 12:46:20.765 | 100 000,- | 7 452 190,- |
| 291147 | 26.03.2018 12:45:37.141 | 50 000,- | 7 352 190,- |
| 282996 | 26.03.2018 12:45:23.171 | 25 000,- | 7 302 190,- |
| 271755 | 26.03.2018 12:45:05.217 | 100 000,- | 7 277 190,- |
| 282996 | 26.03.2018 12:44:54.191 | 25 000,- | 7 177 190,- |
| 291147 | 26.03.2018 12:44:32.325 | 40 000,- | 7 152 190,- |
| 276841 | 26.03.2018 12:44:20.422 | 10 000,- | 7 112 190,- |
| 282996 | 26.03.2018 12:43:21.533 | 50 000,- | 7 102 190,- |
| 271755 | 26.03.2018 12:42:35.221 | 150 000,- | 7 052 190,- |
| 276841 | 26.03.2018 12:41:56.035 | 10 000,- | 6 902 190,- |
| 282996 | 26.03.2018 12:41:02.867 | 25 000,- | 6 892 190,- |
| 276841 | 26.03.2018 12:40:51.158 | 10 000,- | 6 867 190,- |
| 282996 | 26.03.2018 12:40:41.186 | 5 000,- | 6 857 190,- |
| 271755 | 26.03.2018 12:39:49.046 | 5 000,- | 6 852 190,- |
| 272481 | 26.03.2018 12:39:26.593 | 5 000,- | 6 847 190,- |
| 271755 | 26.03.2018 12:39:22.640 | 5 000,- | 6 842 190,- |
| 276841 | 26.03.2018 12:38:19.352 | 5 000,- | 6 837 190,- |
| 285311 | 26.03.2018 12:38:14.749 | 5 000,- | 6 832 190,- |
| 282996 | 26.03.2018 12:38:00.571 | 25 000,- | 6 827 190,- |
| 285311 | 26.03.2018 12:37:45.271 | 5 000,- | 6 802 190,- |
| 282996 | 26.03.2018 12:37:41.894 | 25 000,- | 6 797 190,- |
| 276841 | 26.03.2018 12:37:21.604 | 45 000,- | 6 772 190,- |
| 282996 | 26.03.2018 12:37:18.563 | 25 000,- | 6 727 190,- |
| 285311 | 26.03.2018 12:36:57.861 | 5 000,- | 6 702 190,- |
| 282996 | 26.03.2018 12:36:55.795 | 5 000,- | 6 697 190,- |
| 276841 | 26.03.2018 12:36:48.034 | 70 000,- | 6 692 190,- |
| 272481 | 26.03.2018 12:36:41.561 | 5 000,- | 6 622 190,- |
| 282996 | 26.03.2018 12:36:30.248 | 25 000,- | 6 617 190,- |
| 276841 | 26.03.2018 12:36:17.047 | 15 000,- | 6 592 190,- |
| 272481 | 26.03.2018 12:36:17.061 | 10 000,- | 6 592 190,- |
| 282996 | 26.03.2018 12:35:35.542 | 25 000,- | 6 582 190,- |
| 285311 | 26.03.2018 12:35:16.834 | 25 000,- | 6 557 190,- |
| 272845 | 26.03.2018 12:34:18.990 | 7 190,- | 6 532 190,- |
| 282996 | 26.03.2018 12:34:05.231 | 20 000,- | 6 525 000,- |
| 291147 | 26.03.2018 12:33:36.773 | 5 000,- | 6 505 000,- |
| 272845 | 26.03.2018 12:33:28.848 | 19 000,- | 6 500 000,- |
| 285311 | 26.03.2018 12:33:15.193 | 20 000,- | 6 481 000,- |
| 282996 | 26.03.2018 12:32:22.305 | 40 000,- | 6 461 000,- |
| 276841 | 26.03.2018 12:32:02.459 | 10 000,- | 6 421 000,- |
| 276841 | 26.03.2018 12:31:51.776 | 5 000,- | 6 411 000,- |
| 282996 | 26.03.2018 12:31:33.521 | 5 000,- | 6 406 000,- |
| 289373 | 26.03.2018 12:30:16.822 | 20 000,- | 6 401 000,- |
| 291147 | 26.03.2018 12:29:39.849 | 165 000,- | 6 381 000,- |
| 271755 | 26.03.2018 12:29:28.280 | 5 000,- | 6 216 000,- |
| 278021 | 26.03.2018 12:28:27.805 | 5 000,- | 6 211 000,- |
| 289373 | 26.03.2018 12:28:18.365 | 10 000,- | 6 206 000,- |
| 285311 | 26.03.2018 12:28:13.640 | 10 000,- | 6 196 000,- |
| 272481 | 26.03.2018 12:27:39.518 | 5 000,- | 6 186 000,- |
| 286013 | 26.03.2018 12:27:06.703 | 5 000,- | 6 181 000,- |
| 286013 | 26.03.2018 12:26:58.156 | 5 000,- | 6 176 000,- |
| 281111 | 26.03.2018 12:26:24.720 | 5 000,- | 6 171 000,- |
| 286013 | 26.03.2018 12:26:11.512 | 5 000,- | 6 166 000,- |
| 281111 | 26.03.2018 12:26:00.407 | 5 000,- | 6 161 000,- |
| 278021 | 26.03.2018 12:25:41.932 | 5 000,- | 6 156 000,- |
| 281111 | 26.03.2018 12:25:00.274 | 5 000,- | 6 151 000,- |
| 289373 | 26.03.2018 12:24:29.599 | 20 000,- | 6 146 000,- |
| 281111 | 26.03.2018 12:23:41.826 | 5 000,- | 6 126 000,- |
| 289373 | 26.03.2018 12:23:15.826 | 20 000,- | 6 121 000,- |
| 281111 | 26.03.2018 12:20:11.704 | 5 000,- | 6 101 000,- |
| 289373 | 26.03.2018 12:19:55.878 | 20 000,- | 6 096 000,- |
| 281111 | 26.03.2018 12:17:22.014 | 5 000,- | 6 076 000,- |
| 289373 | 26.03.2018 12:16:32.866 | 20 000,- | 6 071 000,- |
| 285311 | 26.03.2018 12:13:41.795 | 5 000,- | 6 051 000,- |
| 276841 | 26.03.2018 12:12:37.273 | 5 000,- | 6 046 000,- |
| 279656 | 26.03.2018 12:12:15.364 | 11 000,- | 6 041 000,- |
| 271391 | 26.03.2018 12:08:00.955 | 5 000,- | 6 030 000,- |
| 289373 | 26.03.2018 12:07:14.520 | 20 000,- | 6 025 000,- |
| 272481 | 26.03.2018 12:02:02.102 | 5 000,- | 6 005 000,- |
| 285311 | 26.03.2018 11:59:19.675 | 5 000,- | 6 000 000,- |
| 289373 | 26.03.2018 11:58:08.386 | 20 000,- | 5 995 000,- |
| 285311 | 26.03.2018 11:57:11.753 | 5 000,- | 5 975 000,- |
| 271391 | 26.03.2018 11:53:20.568 | 5 000,- | 5 970 000,- |
| 289373 | 26.03.2018 11:53:06.115 | 20 000,- | 5 965 000,- |
| 271391 | 26.03.2018 11:52:25.982 | 5 000,- | 5 945 000,- |
| 289373 | 26.03.2018 11:52:16.720 | 10 000,- | 5 940 000,- |
| 271391 | 26.03.2018 11:46:22.434 | 5 000,- | 5 930 000,- |
| 272481 | 26.03.2018 11:46:12.729 | 5 000,- | 5 925 000,- |
| 271755 | 26.03.2018 11:41:37.199 | 5 000,- | 5 920 000,- |
| 289373 | 26.03.2018 11:38:44.374 | 20 000,- | 5 915 000,- |
| 271755 | 26.03.2018 11:34:59.718 | 5 000,- | 5 895 000,- |
| 271391 | 26.03.2018 11:33:35.559 | 70 000,- | 5 890 000,- |
| 271755 | 26.03.2018 11:31:21.577 | 5 000,- | 5 820 000,- |
| 271391 | 26.03.2018 11:18:58.263 | 50 000,- | 5 815 000,- |
| 289373 | 26.03.2018 11:08:18.791 | 20 000,- | 5 765 000,- |
| 291147 | 26.03.2018 10:25:56.168 | 50 000,- | 5 745 000,- |
| 278021 | 26.03.2018 09:48:54.810 | 30 000,- | 5 695 000,- |
| 272845 | 26.03.2018 09:14:22.683 | 5 000,- | 5 665 000,- |
| 271391 | 26.03.2018 09:03:05.178 | 120 000,- | 5 660 000,- |
| 279930 | 26.03.2018 08:40:55.327 | 5 000,- | 5 540 000,- |
| 282996 | 26.03.2018 08:37:48.768 | 200 000,- | 5 535 000,- |
| 279930 | 26.03.2018 08:33:20.050 | 100 000,- | 5 335 000,- |
| 282996 | 26.03.2018 08:32:37.106 | 200 000,- | 5 235 000,- |
| 279930 | 26.03.2018 08:31:38.114 | 100 000,- | 5 035 000,- |
| 282996 | 26.03.2018 08:31:01.104 | 100 000,- | 4 935 000,- |
| 279930 | 26.03.2018 08:25:23.740 | 200 000,- | 4 835 000,- |
| 281996 | 26.03.2018 08:24:40.156 | 5 000,- | 4 635 000,- |
| 271391 | 26.03.2018 08:23:13.221 | 5 000,- | 4 630 000,- |
| 282996 | 26.03.2018 07:50:37.847 | 100 000,- | 4 625 000,- |
| 256928 | 26.03.2018 07:44:08.277 | 5 000,- | 4 525 000,- |
| 271391 | 26.03.2018 06:08:23.851 | 5 000,- | 4 520 000,- |
| 276227 | 26.03.2018 00:09:53.735 | 5 000,- | 4 515 000,- |
| 271391 | 25.03.2018 23:54:44.274 | 5 000,- | 4 510 000,- |
| 280476 | 25.03.2018 23:51:52.071 | 5 000,- | 4 505 000,- |
| 276227 | 25.03.2018 23:40:08.100 | 100 000,- | 4 500 000,- |
| 276227 | 25.03.2018 23:39:44.600 | 100 433,- | 4 400 000,- |
| 256928 | 25.03.2018 21:46:15.381 | 5 000,- | 4 299 567,- |
| 281111 | 25.03.2018 21:40:58.788 | 5 000,- | 4 294 567,- |
| 281996 | 25.03.2018 17:53:11.039 | 5 000,- | 4 289 567,- |
| 282996 | 25.03.2018 16:12:03.759 | 10 000,- | 4 284 567,- |
| 271391 | 25.03.2018 09:46:18.424 | 5 000,- | 4 274 567,- |
| 282996 | 25.03.2018 09:08:08.629 | 10 000,- | 4 269 567,- |
| 271391 | 24.03.2018 19:10:22.793 | 5 000,- | 4 259 567,- |
| 282996 | 24.03.2018 18:54:35.796 | 5 000,- | 4 254 567,- |
| 256928 | 24.03.2018 08:37:55.742 | 5 000,- | 4 249 567,- |
| 282996 | 24.03.2018 08:14:37.864 | 10 000,- | 4 244 567,- |
| 276227 | 24.03.2018 01:09:46.400 | 99 567,- | 4 234 567,- |
| 271391 | 24.03.2018 00:23:06.040 | 5 000,- | 4 135 000,- |
| 291054 | 24.03.2018 00:00:51.400 | 5 000,- | 4 130 000,- |
| 286173 | 23.03.2018 19:18:34.130 | 5 000,- | 4 125 000,- |
| 271391 | 23.03.2018 17:52:27.271 | 5 000,- | 4 120 000,- |
| 286013 | 23.03.2018 15:43:09.743 | 5 000,- | 4 115 000,- |
| 271391 | 23.03.2018 15:19:50.122 | 5 000,- | 4 110 000,- |
| 256928 | 23.03.2018 14:15:09.578 | 5 000,- | 4 105 000,- |
| 276227 | 23.03.2018 13:34:29.169 | 90 000,- | 4 100 000,- |
| 279930 | 23.03.2018 12:18:23.812 | 5 000,- | 4 010 000,- |
| 275161 | 23.03.2018 11:49:39.629 | 5 000,- | 4 005 000,- |
| 276227 | 23.03.2018 11:45:23.971 | 36 600,- | 4 000 000,- |
| 271391 | 23.03.2018 11:08:27.342 | 5 000,- | 3 963 400,- |
| 256928 | 23.03.2018 09:48:23.495 | 5 000,- | 3 958 400,- |
| 275161 | 23.03.2018 09:22:44.646 | 5 000,- | 3 953 400,- |
| 269801 | 23.03.2018 09:07:47.302 | 5 000,- | 3 948 400,- |
| 281111 | 23.03.2018 09:02:03.051 | 5 000,- | 3 943 400,- |
| 269801 | 23.03.2018 09:00:46.382 | 5 000,- | 3 938 400,- |
| 279656 | 23.03.2018 09:00:07.607 | 5 000,- | 3 933 400,- |