Nejvyšší nabídku učinil účastník aukce ID399001
ukončená
Byt 2+1 (77 m2), Praha 5 - Košíře
Začátek aukce
14.8.2018, 10:00
Konec aukce
16.8.2018, 16:00
Minimální příhoz
5 000 Kč
Nejnižší podání
3 486 400 Kč
Vydražená cena 4 576 400 Kč

Aukce skončila.


Cena dosažená vydražením činí

4 576 400 Kč


Nejvyšší nabídku učinil účastník aukce

ID399001



Číslo
P5830302
Kategorie
Aukce dobrovolná
Adresa

Popis objektu

Aukce bytu z majetku Městské části Praha 5. Uzávěrka přihlášek do aukce včetně složení kauce do 13.8.2018 do 18:00 hod.

 

Účastnit aukce se mohou pouze fyzické osoby – občané ČR nebo občané států EU nebo občané Lichtenštejnska, Švýcarska, Norska či Islandu (více v aukční kartě).


Poloha:

Bytový dům se nachází v ulici Musílkova, pouhé 2 minuty pěšky od tramvajové zastávky Kavalírka. Na metro B Anděl 7 minut tramvají. V těsné blízkosti se nachází park Kavalírka, Klamovka či 10 minut pěšky zelený park Cibulka. V okolí je základní i mateřská škola, gymnázium, spoustu obchodů, restaurací, dětských hřišť i sportovišť.

Popis bytu:

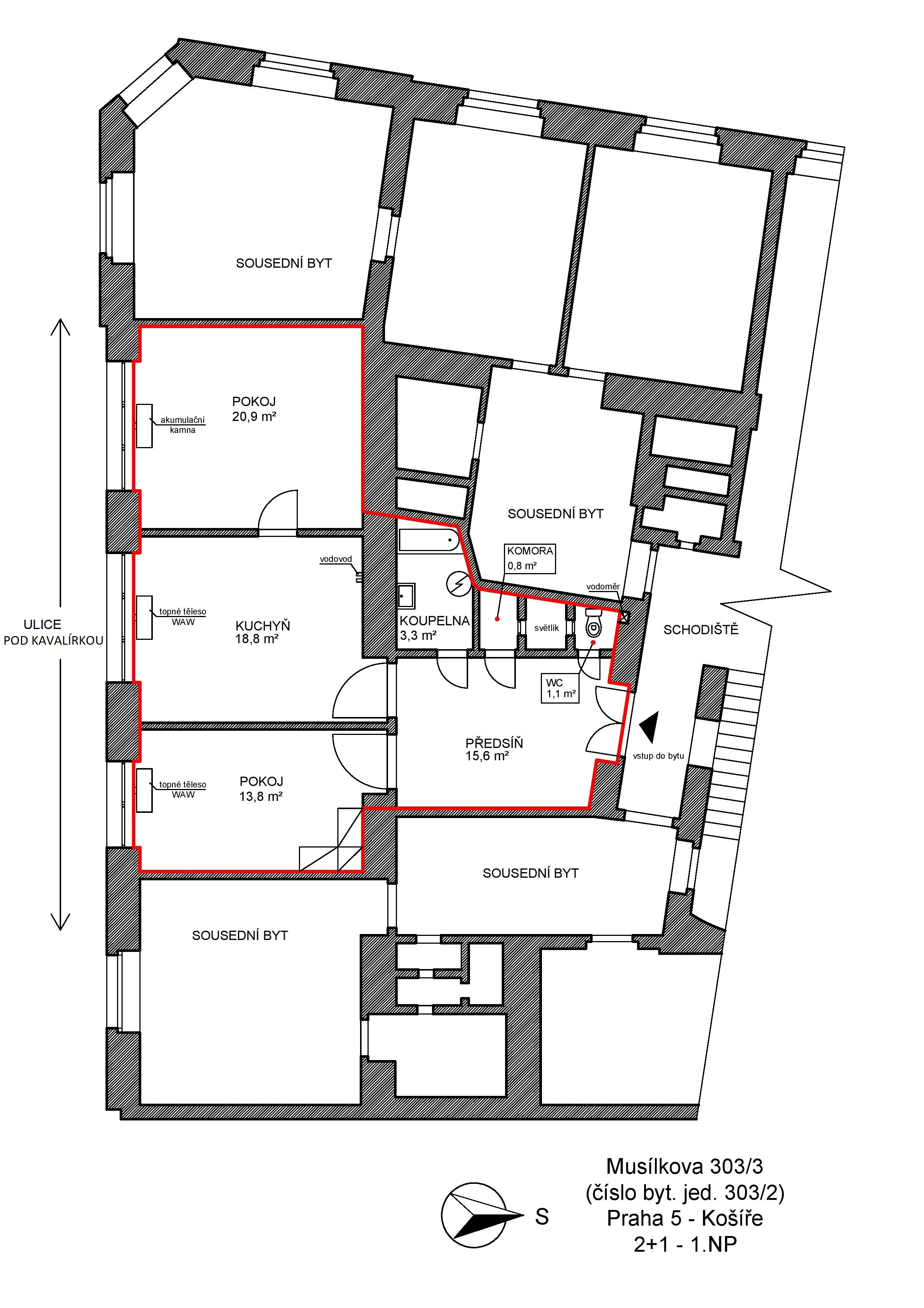
Bytová jednotka 2+1 o celkové podlahové ploše cca 77 m2 a o vnitřní užitné ploše 74,3 m2 se nachází v 1. NP sedmipodlažního domu.

Byt obsahuje 2 pokoje, kuchyň, velkou předsíň, koupelnu, samostatné WC a spíž.

Vstupními dveřmi se vchází do prostorné předsíně. Po pravé straně je samostatné WC, spíž a koupelna s vanou, umyvadlem a el. bojlerem. Na konci chodby se vchází do pokoje a do velké kuchyně, ze které se vstupuje do dalšího velkého pokoje. Okna jsou orientována do klidné ulice Pod Kavalírkou.

V pokojích jsou parkety, v kuchyni a chodbě dřevěné desky, v koupelně a na WC dlažba. Vytápění v bytě je řešeno pomocí lokálního plynového topení WAW a v druhém pokoji pomocí AKU kamen. V bytě je odpojena dodávka elektrické energie. Zaveden plyn.

Celková podlahová plocha bytu:[1] cca 77 m2

Vnitřní užitná plocha:[2] 74,3 m2

Pokoj

20,9 m2

Pokoj

13,8 m2

Kuchyň

18,8 m2

Předsíň

15,6 m2

Koupelna

3,3 m2

WC

1,1 m2

Spíž

0,8 m2

 

74,3 m2

 

K bytu náleží podíl na společných částech domu a pozemku ve výši 743/22374.


Popis domu:

Zděný dům se sedmi nadzemními podlažími a jedním podzemním podlažím, bez výtahu. Budova je v dobrém stavu.

Třída energetické náročnosti budovy: E

 

Hypotéka:

Na koupi bytu je možno použít hypotéční úvěr.

 

Prohlídky:

·         pondělí 30.7.2018, 17:30 – 19:30 hod.

·         středa 8.8.2018, 17:30 – 19:30 hod.

Byt (spolu s dalšími byty zařazenými do prohlídky v daný den) si můžete prohlédnout kdykoliv ve vymezeném čase, není potřeba se objednávat. 

Případné další mimořádné prohlídky pouze po dohodě s poskytovatelem, jejich konání není možno nárokovat.

Adresa: Musílkova 303/3, Praha 5 - Košíře, byt č. 303/02


Zodpovědná osoba:

Ing. Kristina Gavlasová
E-mail: 
kristinag@gavlas.cz

Mobil: 777 092 890
Tel.: 221 666 666

 

Kontakt pro hypotéky:

Leona Nechvílová                                           

Mobil: 603 527 171                                           

E-mail:  leona.nechvilova@gmail.com 

 

Antonín Petrskovský

Mobil: 608 981 771

E-mail: antonin.petrskovsky@sbelter.cz



[1] dle n.v. 366/2013 Sb.

[2] dle prohlášení vlastníka

Předmět aukce
jednotka č. 303/2 vymezená podle zákona o vlastnictví bytů (byt), jednotka je umístěna v budově Košíře, č.p. 303 stojící na pozemku parc.č. 736, včetně spoluvlastnického podílu na společných částech budovy č.p. 303 a na pozemku parc.č. 736 o velikosti 743/22374, vše v katastrálním území Košíře, obec Praha
Soubory ke stažení


  Aukční karta: Aukční karta - Musílkova 303,2.pdf


  Jak se zúčastnit aukce Praha 5 - VIII.VŘ .pdf
  Základní charakteristika Musílkova 303_02.pdf
  Tabulka prohlídek VIII. VŘ MČ Praha 5.pdf
  Dispozice - Musílkova 303-2.pdf
  How to participate in the auction of vacant flats from the property of Prague 5 - VIII. Tender .pdf
  Podmínky VIII. VŘ včetně příloh.pdf
  příloha č. 2 vzorová KS dle BZ.pdf
  Schéma Musílkova 303.pdf
  Prohlášení vlastníka Musílkova 303.pdf
  Stanovy SVJ Musílkova 303.pdf
  PENB Musílkova 303.pdf
  Výpis z KN 303-02.pdf
  Dispozice - Musílkova 303-2.pdf
  Pozemková mapa 303.pdf

Umístění objektu

Adresa
Musílkova 303/3, 150 00 Praha 5 - Košíře

Fotogalerie

 
Účastník aukce Čas příhozu Výše příhozu Nabídka
399001 16.08.2018 15:58:38.617 50 000,- 4 576 400,-
381015 16.08.2018 15:58:19.063 5 000,- 4 526 400,-
399001 16.08.2018 15:57:55.551 50 000,- 4 521 400,-
381015 16.08.2018 15:56:57.048 5 000,- 4 471 400,-
399001 16.08.2018 15:55:48.875 50 000,- 4 466 400,-
381015 16.08.2018 15:55:30.302 5 000,- 4 416 400,-
399001 16.08.2018 15:54:04.892 50 000,- 4 411 400,-
381015 16.08.2018 15:53:49.320 5 000,- 4 361 400,-
399001 16.08.2018 15:52:19.745 50 000,- 4 356 400,-
381015 16.08.2018 15:52:01.381 5 000,- 4 306 400,-
399001 16.08.2018 15:50:45.718 10 000,- 4 301 400,-
381015 16.08.2018 15:50:34.023 5 000,- 4 291 400,-
399001 16.08.2018 15:48:55.454 50 000,- 4 286 400,-
381015 16.08.2018 15:48:17.951 5 000,- 4 236 400,-
399001 16.08.2018 15:47:25.904 50 000,- 4 231 400,-
381015 16.08.2018 15:46:50.349 5 000,- 4 181 400,-
399001 16.08.2018 15:46:15.401 50 000,- 4 176 400,-
381015 16.08.2018 15:45:47.454 5 000,- 4 126 400,-
399001 16.08.2018 15:44:10.300 50 000,- 4 121 400,-
381015 16.08.2018 15:43:46.896 5 000,- 4 071 400,-
399001 16.08.2018 15:43:40.260 50 000,- 4 066 400,-
381015 16.08.2018 15:43:19.097 5 000,- 4 016 400,-
399001 16.08.2018 15:42:03.697 50 000,- 4 011 400,-
381015 16.08.2018 15:41:50.242 5 000,- 3 961 400,-
399001 16.08.2018 15:41:20.751 50 000,- 3 956 400,-
381015 16.08.2018 15:41:03.750 5 000,- 3 906 400,-
399001 16.08.2018 15:40:15.287 50 000,- 3 901 400,-
381015 16.08.2018 15:40:01.739 5 000,- 3 851 400,-
399001 16.08.2018 15:39:07.342 50 000,- 3 846 400,-
381015 16.08.2018 15:38:46.899 5 000,- 3 796 400,-
399001 16.08.2018 15:38:19.275 55 000,- 3 791 400,-
381015 16.08.2018 15:37:58.161 5 000,- 3 736 400,-
399001 16.08.2018 15:36:31.706 50 000,- 3 731 400,-
381015 16.08.2018 15:35:57.205 5 000,- 3 681 400,-
399001 16.08.2018 15:34:22.108 40 000,- 3 676 400,-
381015 16.08.2018 15:34:07.756 5 000,- 3 636 400,-
399001 16.08.2018 15:32:29.130 50 000,- 3 631 400,-
381015 16.08.2018 15:31:33.191 5 000,- 3 581 400,-
399001 16.08.2018 15:31:15.281 50 000,- 3 576 400,-
381015 16.08.2018 15:30:50.941 10 000,- 3 526 400,-
399001 16.08.2018 15:30:37.456 5 000,- 3 516 400,-
381015 16.08.2018 15:30:23.825 5 000,- 3 511 400,-
399001 16.08.2018 15:29:58.719 5 000,- 3 506 400,-
381015 16.08.2018 15:29:41.965 5 000,- 3 501 400,-
399001 16.08.2018 15:27:40.713 5 000,- 3 496 400,-
381015 16.08.2018 06:59:56.660 5 000,- 3 491 400,-

Máte otázky?
Kontaktujte nás