Nejvyšší nabídku učinil účastník aukce ID572610
ukončená
Rodinný dům s garáží, ul. Pod Zámkem č.p. 108 a č.p. 557, Brtnice, okres Jihlava
Začátek aukce
3.5.2022, 10:00
Konec aukce
5.5.2022, 16:05
Minimální příhoz
10 000 Kč
Nejnižší podání
1 185 000 Kč
Vydražená cena 1 720 000 Kč

Aukce skončila.


Cena dosažená vydražením činí

1 720 000 Kč


Nejvyšší nabídku učinil účastník aukce

ID572610



Číslo
B3/5/2022
Kategorie
Aukce dobrovolná
Adresa

Popis objektu

Rodinný dům je s ohledem na své stáří v udržovaném stavu. V roce 1995 byla provedena nová střecha včetně krytiny a podkroví, fasáda, instalován plynový kotel a bojler. V roce 2005 byla nově rekonstruovaná kuchyň včetně kuchyňské linky, dlažby a linolea. Dům je umístěn po západní straně ulice, garáž je umístěna naproti domu. Na dům č.p. 108 navazuje dům č.p. 557, který dle místního šetření fyzicky neexistuje, bylo provedeno propojení domu č.p. 108 a č.p. 557.

Odkaz na 3D prohlídku: https://my.matterport.com/show/?m=HRMzpAoTURk

 

Rodinný dům je situován v rodinné zástavbě venkovského typu zasazené do historické části města. Lokalita je klidná, mimo hlavní komunikaci, v romantickém prostředí s výhledem na zámek, u vodopádu, pod rybníkem.

 

Cena dle znaleckého posudku ke dni 20.04.2021: 1.580.000,- Kč

 

Inženýrské sítě: Rodinný dům připojen na veškerou technickou infrastrukturu, vodovod, obecní kanalizaci, el.energii, plyn.

 

Garáž: Umístěná na pozemku p.č. st. 1394, zastavěná plocha 29 m2, postavená v roce 1970, provedena nově omítka v roce 1996. Vrata dřevěná dvoukřídlová. Stavba v dobrém technickém stavu.

 

chodba

12,24 m2

kuchyně

14,58 m2

pracovna

8,06 m2

obývací pokoj

20,77 m2

koupelna

6,44 m2

koupelna

6,44 m2

pokoj

20,48 m2

ložnice

13,40 m2


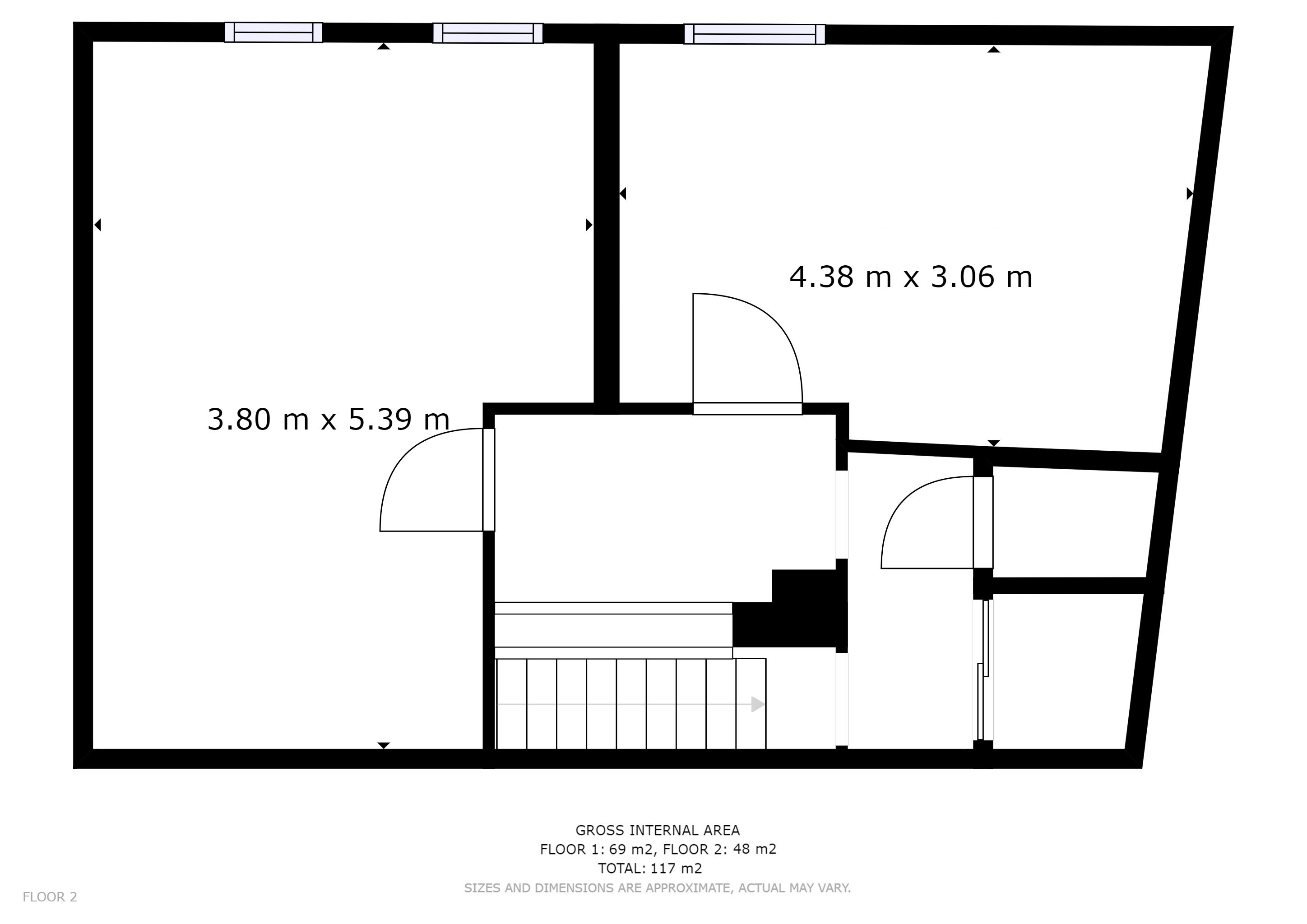
Celková užitná plocha domu je cca 92 m2.

 

Termíny prohlídek:
1) 19.04.2022 v 13:00 hod.
2) 25.04.2022 v 15:00 hod.

Účast na prohlídce doporučujeme potvrdit emailem na  michael.gottvald@gavlas.cz minimálně 24 hod před konáním prohlídky. V případě, že se na prohlídku nikdo nepřihlásí, bude termín prohlídky zrušen.

Sraz zájemců o prohlídku je před domem Jihlavská 468, 588 32 Brtnice, Česko.

 

Adresa:  Pod Zámkem 108, 588 32 Brtnice, Česko

 

Zodpovědná osoba:

Ing. Michael Gottvald

E-mail: michael.gottvald@gavlas.cz

Mobil: 776 118 336

 

Kontakt pro hypotéky:

SAB servis s.r.o., Jungmannova 748/30, Praha 1, 110 00

Antonín Petrskovský

Mobil: 608 981 771

E-mail: petrskovsky@sabservis.cz

Jiří Balík

Mobil: 777 652 800

E-mail: jiri.balik11@gmail.com

 

ČSOB Stavební spořitelna, a. s.

David Haralík

Mobil: 603 842 529

e-mail: david.haralik@csobstavebni-oz.cz


Předmět aukce

- pozemek parc. č. St. 376, součástí je stavba: Brtnice, č.p. 108 a

- pozemek parc. č. St. 377, součástí je stavba: Brtnice, č.p. 557 a

- pozemek parc. č. St. 1394, součástí je stavba: Brtnice, č.e. 289,

- pozemek parc. č. 2060/12,

vše v katastrálním území Brtnice, obec Brtnice, včetně všech součástí a příslušenství.

Soubory ke stažení


  Aukční karta: Aukční karta.pdf
  Dodatek č. 1 k aukční kartě: Aukční karta dodatek.IGN.pdf


  Jak se zúčastnit aukce rodinného domu, Brtnice.pdf
  Znalecký posudek.pdf
  List vlastnictví.pdf
  Kupní smlouva - vzor.pdf
  EG.D Ele_stanovisko kú Brtnice.pdf
  GasNet vyjádření kú Brtnice.pdf
  CETIN Vyjádření o existenci SEK (586832-22).pdf
  CETIN Situační výkres (586832-22).pdf
  KM kú Brtnice.pdf

Umístění objektu

Adresa
Pod Zámkem, Brtnice

Fotogalerie

 
Účastník aukce Čas příhozu Výše příhozu Nabídka
572610 05.05.2022 16:02:49.008 10 000,- 1 720 000,-
573336 05.05.2022 16:02:36.300 100 000,- 1 710 000,-
572610 05.05.2022 16:01:36.848 10 000,- 1 610 000,-
573336 05.05.2022 16:01:23.587 80 000,- 1 600 000,-
572610 05.05.2022 15:59:43.957 10 000,- 1 520 000,-
573336 05.05.2022 15:59:18.203 140 000,- 1 510 000,-
572610 05.05.2022 15:58:31.741 10 000,- 1 370 000,-
573336 05.05.2022 15:57:37.927 150 000,- 1 360 000,-
572610 05.05.2022 14:00:44.241 10 000,- 1 210 000,-
573336 04.05.2022 06:42:24.229 15 000,- 1 200 000,-

Máte otázky?
Kontaktujte nás